プロジェクトレビューアーの例

例えば、製図担当者がマンションの作業を行っています。設計者はマンション(例えば、マンションB26)を確認して、必要に応じて変更を加えることができます。

AC_ApartmentB26.png 

1.設計者が製図担当者に確認する図面を送るように依頼します。製図担当者は、ArchiCADの発行機能を開き、 DWF形式で発行する2階部分を選択します。このDWFファイルは「マンションB26レビュー」発行セットの一部です。製図担当者は、[発行セットプロパティ]ダイアログで、保存するファイルのパスを設定します。さらに、保存するファイルに必要なJavaアプリケーションが組み込まれるように、[プロジェクトレビューアーのウェブ環境を含める]チェックボックスをチェックします。

SaveB26InPublisher.png 

2.製図担当者は、このセットまたは図面を発行します。

PublishingB26.png 

3.製図担当者は、自分のコンピュータに保存したファイルを必要に応じて1つのファイル(ZIPなど)に圧縮し、設計担当者に送信します。全てが問題なく、データが正しく保存されたことを確認するために、製図担当者はファイルを送信する前に保存したHTMLファイルを開くことをお勧めします。

SendB26Files.png 

4.設計者がファイルを受信します。設計者は、HTMLファイルをダブルクリックしてウェブ上でプロジェクトレビューアー環境を起動します。

Reviewer_OpeningB26.png 

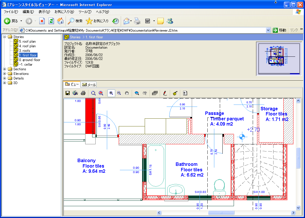
5.設計者は、問題の領域を拡大し、確認を開始します。

Reviewer_B26.png 

ここで、複数の項目を確認できます。例えば、標準ツールバーのメジャーツールを使用して、風呂やリビングが十分な広さか確認できます。

Reviewer_B26_LivingWidth.png 

6.次に、設計者は、製図担当者に変更内容に関する指示を与えるためのレッドライン項目の作成を開始できます。例えば、キッチンとリビングの間の壁を取り除いて、キッチンカウンターとダイニングテーブルの配置を変えたい場合があります。また、リビングと玄関の間の壁を下に移動してリビングエリアを広くしたい場合もあります。設計者は、楕円ツール、自由連続直線ツール、矢印ツール、テキストツールなど、プロジェクトレビューアーの各種のレッドラインツールを使用して、全ての変更点にマークを付けます。

Reviewer_Redlining.png 

7.この手順の後、設計者は、レッドラインデータをファイルにアップロードし変更内容を保存してから、レビューアーの[電子メール]タブページに移動して、レッドラインファイルを含む変更後のDWFを製図担当者に送信できます。レビューアーは、アップロードされたDWFレッドラインファイルを送信メールに自動的に添付します。設計者は、製図担当者に送信するメールにその他のファイルを添付できます。また、レビューアーを使用してメールを送信するのは便利ですが、それ以外の方法でも送信できます。例えば、設計者は普段使用している電子メールプログラムからメールを送信できます。ただし、その場合、手動でレッドラインDWFファイルを探し、メールに添付します。

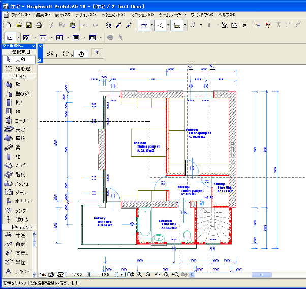
8.製図担当者がメールを受信します。その後、製図担当者は添付されたレッドラインDWFファイルを自分のハードディスクに保存します。そして、[マークアップツール]パレットを開き、[新規マークアップ項目]を作成します。このマークアップ項目のインポート元のDWFファイルを選択します。これが、設計者が製図担当者に送信したファイルになります。

AC_MarkUp_ImportRedLine.png 

9.ArchiCADの平面図にレッドライン情報が表示されます。この項目は「レッドライン」レイヤーにインポートされます。

AC_MarkUp_RedLineVisible.png 

10.必要な全ての変更点が表示されるので、製図担当者は必要な変更を加えます。変更が終了したら、この過程を再度繰り返します。変更の終了後、製図担当者は設計者に再びファイルを送信し、設計者は全ての変更が依頼どおりに行われたかどうか確認します。依頼どおりに変更が行われていない場合、または新しい変更が必要になった場合、設計者は別のレッドラインDWFファイルを送信します。製図担当者と設計者は、全ての変更が設計者の仕様に従って正しく実行されるまでこれを行います。