Использование обозревателя проекта

Давайте предположим, что проектировщик работает над многоквартирным домом. Предположим, что архитектор решил посмотреть на квартиру (например, квартиру B26) и, возможно, сделать некоторые изменения в ее проекте.

AC_ApartmentB26.png 

1.Архитектор просит проектировщика послать ему чертежи для их анализа. Проектировщик переходит в издатель ArchiCAD. Здесь он выбирает второй этаж для публикации в формате DWF. Файл DWF является составной частью набора издателя “Анализ квартиры B26’. Проектировщик устанавливает путь для сохраняемых файлов в диалоговом окне Свойства набора издателя. Здесь же он отмечает маркер Включить веб-среду обозревателя проекта, при этом в сохраняемые файлы включается необходимое приложение Java.

SaveB26InPublisher.png 

2.Затем проектировщик публикует этот набор чертежей.

PublishingB26.png 

3.Затем он находит сохраненные файлы на своем компьютере, сжимает их в одном архивном файле (например, ZIP), если в этом имеется необходимость, и отсылает их архитектору. Можно посоветовать проектировщику перед отправкой файлов HTML открыть их и убедиться, что все нормально, данные сохранены правильно.

SendB26Files.png 

4.Архитектор получает файлы. Он делает двойной щелчок на файле HTML для запуска веб-среды обозревателя проектов.

Reviewer_OpeningB26.png 

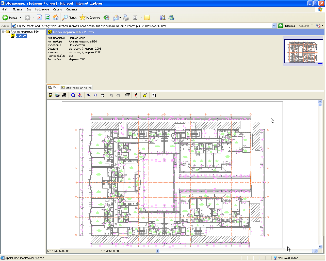
5.Он перемещается к интересующей его части и начинает анализировать ее.

Reviewer_B26.png 

Здесь он может проверить некоторые характеристики. Например, используя инструмент Мерная лента из табло команд Инспектор, он может проверить, достаточно ли широкая ванная комната.

Reviewer_B26_LivingWidth.png 

6.Затем он может приступить к нанесению элементов исправлений (корректура) для инструктирования проектировщика, что и как следует изменить. Например, он может посоветовать переместить стену между кухней и жилой комнатой с тем, чтобы можно было изменить расположение кухонного шкафа и обеденного стола. Он также может посоветовать переместить стену между жилой комнатой и прихожей с тем, чтобы увеличить площадь первой. Он фиксирует все эти изменения с помощью инструментов исправлений обозревателя проектов, таких как, инструмент Эллипс, инструмент Полилиния от руки, инструмент Указатель, инструмент Текст.

Reviewer_Redlining.png 

7.После этого он может выгрузить в файл данные его исправлений, сохранить свои изменения, затем перейти в закладку электронной почты обозревателя проектов и послать проектировщику измененный DWF, содержащий файл исправлений. Обозреватель автоматически приложит файлы исправлений к выгружаемому DWF и затем пошлет их по указанному адресу. Кроме того, к отправляемому по e-mail сообщению он также может приложить любые другие файлы. Хотя это не обязательно, но мы рекомендуем для отсылки e-mail использовать обозреватель проектов. Архитектор может отослать информацию с помощью любой другой почтовой программы, однако в этом случае ему следует вручную найти и приложить к письму требуемые файлы.

8.После получения письма Чертежник сохраняет приложенные файлы исправлений DWF на своем компьютере.

9.В Панели Разметки ArchiCAD он нажимает кнопку Экспорт и Импорт Компонентов Разметки.

ImporMarkupButton.png 

В открывшемся диалоговом окне он выбирает вариант Импорт из Файла и указывает все сохраненные файлы DWF. Каждый файл становится новым Компонентом Разметки ArchiCAD.

ExportMarkupDB.png 

10.Информация об исправлениях появляется на плане этажа ArchiCAD. Эти компоненты импортируются на слой Исправления.

AC_MarkUp_RedLineVisible.png 

11.Отметим, что все необходимые изменения ему видны, и он производит эти изменения. После завершения этой работы данный цикл может повториться снова. Завершив все необходимые изменения, он опять отсылает файл проектировщику, который убеждается, что все было сделано правильно. И если это не так, или если появились новые предложения по усовершенствованию проекта, архитектор отсылает свои новые исправления и замечания. Все это продолжается до тех пор, пока не будут выполнены все требования архитектора.