Projekt Reviewer Beispiel

Angenommen, ein Zeichner arbeitet an einem Apartmentgebäude. Der Architekt möchte ein Appartement überprüfen (z. B. Appartement B26) und ggf. Änderungen an der Konzeption vornehmen.

AC_ApartmentB26.png 

1.Der Architekt bittet den Zeichner, ihm die Zeichnungen zur Begutachtung zu übermitteln. Der Zeichner wechselt zum Publisher in ARCHICAD. Dort wählt er das 2. Geschoss für die Publikation im DWF-Format aus. Die DWF-Datei gehört zum Publisher-Set 'Apartment B26 Begutachtung'. Er legt den Pfad für die zu speichernden Dateien im Dialogfenster “Publisher-Set-Einstellungen” fest. Hier aktiviert er auch das Kontrollkästchen “Mit der Projekt Reviewer-Webumgebung sichern”, damit die benötigte Java-Anwendung mit den Daten gespeichert wird.

SaveB26InPublisher.png 

2.Der Zeichner publiziert dann dieses Set oder diese Zeichnung.

PublishingB26.png 

3.Er findet die gespeicherten Dateien auf seinem Computer, fasst sie bei Bedarf in einer komprimierten Datei (z. B. ZIP) zusammen und schickt sie dem Architekten per E-Mail. Es kann für den Zeichner ratsam sein, die gespeicherte HTML-Datei vor dem Verschicken im Browser zu öffnen, um sicherzustellen, dass alles in Ordnung ist und wie geplant gespeichert wurde.

SendB26Files.png 

4.Der Architekt erhält die Dateien. Er öffnet die HTML-Datei, um die Projekt Reviewer Webumgebung zu starten.

Reviewer_OpeningB26.png 

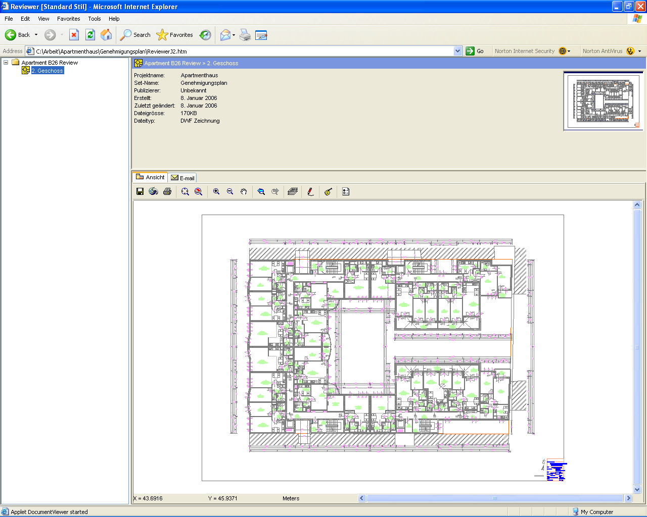
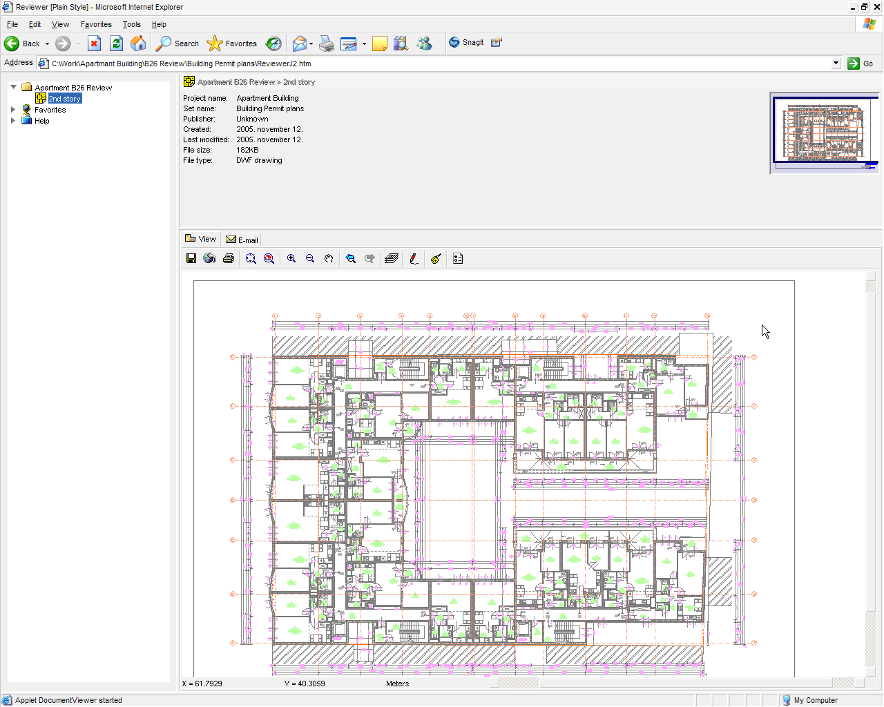
5.Er navigiert zu dem entsprechenden Bereich und beginnt seine Durchsicht.

Reviewer_B26.png 

Hier sollte er eventuell verschiedene Dinge prüfen. Er kann mit Hilfe des Maßbandes im Werkzeugkasten überprüfen, ob das Bad oder das Wohnzimmer groß genug sind.

Reviewer_B26_LivingWidth.png 

6.Er kann dann anfangen, Redlining-Einträge zu machen, um dem Zeichner mitzuteilen, was zu ändern ist. Zum Beispiel möchte er vielleicht eine Entwurfsoption für die Wohnung haben, bei der die Wand zwischen Küche und Wohnzimmer fehlt, sodass er die Küchentheke und den Esstisch umstellen kann. Außerdem will er die Wand zwischen dem Wohnzimmer und der Diele nach unten verschieben, um das Wohnzimmer zu vergrößern. Er vermerkt all diese Änderungen mit Hilfe der verschiedenen Redlining-Werkzeuge des Projekt Reviewers, z. B. dem Ellipsen-Werkzeug, dem Freihand-Polylinien-Werkzeug, dem Pfeil-Werkzeug oder dem Text-Werkzeug.

Reviewer_Redlining.png 

7.Nach diesem Schritt kann er die Redlining-Daten in die Datei hochladen, seine Änderungen speichern, dann zur E-Mail-Registerkarte des Projektes Reviewers wechseln und dem Zeichner die modifizierte DWF mit der Redline-Datei schicken. Reviewer hängt die DWF-Redline-Dateien automatisch an die verschickte E-Mail an. Er kann auch beliebige andere Dateien an die E-Mail anhängen, die er dem Zeichner schickt. Bei alledem ist es zwar praktisch, aber nicht notwendig, Projekt Reviewer für die Versendung von E-Mails zu verwenden. Der Architekt kann auch sein eigenes E-Mail-Programm verwenden, aber in diesem Fall muss er die Redlining-DWF-Dateien manuell an die E-Mail anhängen.

8.Wenn der Zeichner seine E-Mail erhält, speichert er die angehängten Redlining-DWF-Dateien an einer beliebigen Stelle.

9. In der ARCHICAD Projektmarker-Palette klickt er auf Export und Import Marker Einträge.

ImporMarkupButton.png 

In dem daraufhin angezeigten Dialogfenster wählt er Import aus Datei aus und sucht die einzelnen gesicherten DWF-Dateien. Jede dieser Dateien wird zu einer neuen Projekt-Marker-Eingabe in ARCHICAD.

ExportMarkupDB.png 

10.Die Redlining-Informationen erscheinen auf dem ARCHICAD-Grundriss. Diese Einträge werden auf der 'Redline'-Ebene importiert.

AC_MarkUp_RedLineVisible.png 

11.Jetzt wo alle erforderlichen Änderungen für ihn sichtbar sind, nimmt der Zeichner die notwendigen Änderungen vor. Wenn er fertig ist, beginnt der Kreislauf von Neuem. Wenn er mit den Änderungen fertig ist, schickt er dem Architekten die Datei, der sicherstellt, dass alle Änderungen wie verlangt durchgeführt wurden. Falls nicht oder falls neue Änderungen nötig sind, schickt er eine weitere Redlining-DWF-Datei. Dies geht so weiter, bis alle Änderungen den Anweisungen des Architekten entsprechend korrekt ausgeführt wurden.