Oriented View

Use the Oriented View function to rotate the entire view on your screen to a preferred position. For example, if you are working on the wing of a building that is at an angle to another one, you can orient the view so that the wing you are working on lines up with your screen, rather than at an angle.

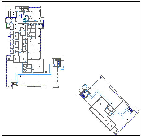
PreOrient.png 

PostOrient.png 

Orienting the view does not rotate the project as such; the project coordinates remain unchanged. It just turns the window contents so that they are displayed at a more convenient angle on your monitor. (You get the same effect if you rotate your monitor.)

Oriented View (Rotation) in View Settings

“Rotation” is included in a view’s Zoom data. Thus, when saving View Settings, you save its zoom, including its rotation.

There is a checkbox in View Settings: Ignore zoom when opening this view. If this is checked, then the displayed view will not use the saved zoom value, but rather the window’s last-used zoom value. Consequently, the rotation will not be seen either. Uncheck the box if you wish to see the saved zoom value in the window, together with the rotation. (Views placed on layouts will always display their saved zoom/rotation.)

How to Rotate Window Contents

Rotate Window Contents by Selected Edge to Orthogonal Position

Zoom and Rotate

Grids in Oriented View

Text in Oriented View

How to Rotate Window Contents

1.Click the Rotate Orientation icon at the bottom of your screen.

RotateOrientationIcon.png 

2.On screen, draw a rotation vector with two clicks.

RotateOrientation1.png 

3.Drag your mouse to rotate the screen contents to the desired angle, or enter a numerical rotation angle into the Tracker. Click a third time to complete.

See also Tracker.

RotateOrientation2.png 

4.The degree of rotation is shown on the Reset Orientation button at the bottom of your screen, next to the Rotate Orientation control. To reset the rotation degree to zero, click this button.

OrientationDegree.png 

The pair of arrows in the lower left corner also indicates the rotation.

In the Navigator Preview, only the frame representing the monitor rotates; the preview itself does not.

NavPrevRotate.png 

Oriented View is available in the Floor Plan, Worksheet, Detail and 3D Document windows. The rotated orientation value is saved as part of the “Zoom” value of every saved view, and on the published output created from that view.

Rotate Window Contents by Selected Edge to Orthogonal Position

1.Click the Rotate Orientation icon at the bottom of your screen.

RotateOrientationIcon00011.png 

2.Move the cursor to the edge of a project element, such as a slab, which you want to rotate to an orthogonal (horizontal or vertical) position on the screen. (The cursor will change to a Mercedes to indicate you have located the edge.)

3.Ctrl+click on the edge.

4.The window contents will rotate so that the clicked edge moves to either at 0 degrees or 90 degrees, whichever is nearer.

Zoom and Rotate

To rotate the view and zoom in or out at the same time:

1.Click the Zoom In or Zoom Out button from the bottom of your screen.

See also Zoom In/Out with Scrollbar Buttons.

2.Press Ctrl.

3.Using three clicks, draw the zooming rectangle on screen at the desired angle.

ZoomRotate1.png 

When you complete the rectangle with the third click, the view will zoom in/out and be rotated simultaneously.

ZoomRotate2.png 

Grids in Oriented View

The on-screen Grid, if it was orthogonal to begin with, remains orthogonal after the rotation. If it was a rotated Grid, that Grid will rotate along with the view, its project coordinates remaining unchanged after the rotation.

Text in Oriented View

Text blocks

The way a Text Block behaves in a rotated view is set in Text Tool Settings in the Text Block Formatting Panel.

See Text Block Formatting Panel.

Text Labels

See Text Label Panel.

Dimension text

Dimension text is automatically adjusted to ensure that it will remain easily legible regardless of the view’s orientation. (If you set a custom angle for dimension text, however, that angle will prevail.)

For dimensions whose text is set to “Horizontal” in Dimension Tool Settings, the text will remain horizontal with respect to the screen regardless of any rotation of the view.

See Dimension Tool Settings.

Fill Area text

Will always be displayed horizontally on screen, regardless of the view’s orientation.

See Add Area Text to a Fill.

(If you set a custom angle for fill area text, however, that angle will prevail.)

Text of GDL Objects in Rotated View

GDL Object-type elements may contain text that is affected by a rotated orientation. For example, options for Text Orientation on Symbol include:

Readable: As the view is rotated, the object text rotates too, but is flipped as necessary to ensure text readability.

Align with Symbol: Text rotates together with the symbol, with no other adjustments.

Always Horizontal: Text remains fixed in a horizontal position on screen, regardless of the view’s orientation.

Marker Text in Section/Elevation/Detail/Worksheet

The relevant parameter is entitled Marker Text Rotation and may include the following values, depending on the marker type:

Always Horizontal and Always Vertical values will display text horizontally/vertically on screen, regardless of the view’s orientation.

Align with Section Line will keep the text lined up with the Section line, following any view rotation, and will flip the text if necessary to ensure readability.

Align with Section Line - No Flip will keep the text lined up with the Section line, following any view rotation, without any “flip” adjustment for readability.

SectionMarkerHorizontal.png 

Text of Door/Window Markers

The relevant parameter is entitled Marker Text Rotation and may include the following values, depending on the marker type:

Standard: Text is always parallel to the wall, and is automatically readable (that is, flipped if necessary after rotation of the view).

Align with Marker Line: Text remains fixed in line with the marker line and is automatically readable.

Horizontal/Vertical: Width/Height/Sill/Fire Rating/Acoustic Rating texts are automatically readable.