一覧表内のプレビューと画像

一覧表には、2Dまたは3Dプレビュー画像を含めることができます。

IESPictureFields.png 

注釈プレビュー

一覧表のこのプレビューに連動寸法を追加できます。

1.注釈を追加するセルをダブルクリックするか、

セルを選択してから[注釈]をクリックします。

Annotate.png 

2.[要素プレビュー]という名前の別のタブ/ウィンドウが開き、ビューが表示されます。

3.使用可能な2Dツールを使用して、寸法、ラベル、テキストなどの注釈を追加します。オブジェクトツールを使用すると、使用可能なライブラリから注釈を追加することもできます。

DimPreview.png 

4.左上のメニューから[OK]をクリックして、このタブ/ウィンドウを閉じ、注釈を選択したビューに適用します。あるいは、[キャンセル]をクリックして、変更を適用せずに閉じます。

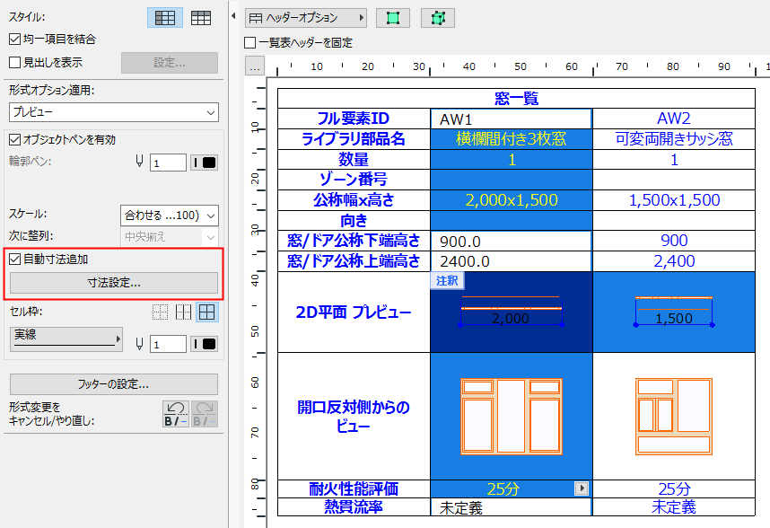
一覧表プレビューの自動寸法設定(ドア/窓)

ドア/窓のプレビューを表示する一覧表の場合、[一覧表オプション]に[自動寸法追加]オプションが表示されます。

DimensionIS.png 

このボックスをクリックすると、選択した画像に自動寸法が追加されます。次に[寸法設定]をクリックすると、表示される[自動寸法]ダイアログボックスで画像の寸法オプションを設定できます。

AutoDimensionsIS.png