Témata v této části
Přidání/Odebrání hrany ke kótě posunu
Přidání kót k modifikátoru posunu
Odstranění hran nebo celé kóty
Související téma
Vytvoření nového modifikátoru posunu
Modifikátory posunu: Tipy a triky
1.Modifikátor aktivujete, pokud ho označíte v seznamu modifikátorů ve Správci profilů; nebo můžete kliknout na kótu posunu, modifikátor se aktivuje a označí.
2.Pokud nad kótu najedete myší, zvýrazní se jeho kotevní uzly/hrany.
3.Klikněte na konec kóty, který chcete upravit.
4.Přesuňte kurzor na jiný uzel nebo hranu a dalším kliknutím ukotvení přemístěte.
Přidání/Odebrání hrany ke kótě posunu
K jediné kótě můžete připojit více hran. Všechny hrany se budou posouvat současně.
V tomto příkladu je modifikátor “Hrana”.
1.V okně editoru profilu najeďte kurzorem nad kótu nebo přiřazenou hranu modifikátoru Hrana, zobrazí se ikona editace.
2.Na ikonu klikněte: Přidejte nebo odeberte hranu.
3.Jak přesouváte kurzor, dostupné hrany (zobrazené černě) jsou zvýrazňovány modře. Klikněte na vybranou hranu.
4.Dalším kliknutím nastavíte směr.
5.Druhá hrana byla přidána ke stávající kótě.
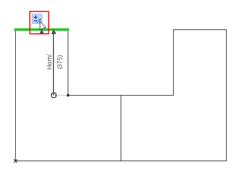
Přidání kót k modifikátoru posunu
K jednomu modifikátoru posunu můžete přidat více kót. Každá následná kóta bude mít stejnou délku. Díky tomu může mít více hran jednoho modifikátoru pevně dané ukotvení - pro případy, kdy by se ukotvení takových hran přesouvala jinými modifikátory.
1.Vyberte modifikátor (Hrana) ve Správci profilů.
2.Klikněte na ikonu Přidat kótu.
3.Jak budete posouvat kurzorem, dostupné hrany a kotevní uzly budou zvýrazňovány modře. Kliknutím vyberte hranu a ukotvěte kótu běžným způsobem. Délka kóty je stejná, jako délka stávající kóty modifikátoru (nastavena jako první).

4.Ve výsledku může jediný modifikátor ovládat dvě samostatně ukotvené hrany.
V tomto příkladu je kóta posunu “Hrana” ukotvena k hraně, která je sama modifikátorem (Základna). Všimněte si, že kóta modifikátoru “Hrana” napravo má vlastní kotevní bod.
Pokud se kotevní bod posune, posune se i kóta, která je k němu připojená. Pokud se tedy v tomto případě posune základna, posune se i kóta hrany (ukotvená k základně).

Hrana napravo ale zůstává na místě: její ukotvení se nezměnilo.
Odstranění hran nebo celé kóty
1.Ve Správci profilů aktivujte modifikátor, který chcete upravit; nebo můžete kliknout na kótu posunu, modifikátor se aktivuje a označí.
1.V okně editoru profilu najeďte kurzorem nad hranu nebo kótu.
2.Klikněte na ikonu editace: Přidejte nebo odeberte hranu.
3.Najeďte kurzorem na hranu, hrana zčervená: kliknutím ji odstraníte.
Hrana je odstraněna.
Pokud kurzorem najedete nad poslední hranu nebo kótu, zčervená celá kóta a všechny hrany. Pokud odstraníte všechny kóty modifikátoru, zobrazí se u něj ve Správci profilů varování.
Můžete kliknout na tlačítko Přidat kótu posunu vytvořit modifikátoru novou kótu s ukotvenou hranou.
1.Označte ve Správci profilů modifikátor, který chcete odstranit.
2.Klikněte na Odstranit.
Všechny kóty posunu a ukotvené hrany vybraného modifikátoru budou odstraněny.
V seznamu modifikátorů označte jméno dvojklikem a můžete ho rovnou upravit.