Verwenden Sie den Bearbeitungsmodus des Treppen-Werkzeuges, um eine oder mehrere der Treppen-Komponenten zu bearbeiten: Trittstufen, Setzstufen und Strukturen.
Anmerkung: Sie können die Refrenzlinie und die Kante der Treppe unabhängig vom Bearbeitungsmodus bearbeiten.
•Rufen Sie den Bearbeitungsmodus aus Grundriss, Ansicht, Schnitt oder 3D-Fenster auf. Sie können im Bearbeitungsmodus bleiben, auch wenn Sie zwischen verschiedenen Fenstern wechseln.
•Im Bearbeitungsmodus für die Treppe (anders als im Fassaden-Bearbeitungsmodus) können Sie keine neuen Trittstufen, Setzstufen oder Strukturen hinzufügen - Sie können nur die vorhandenen bearbeiten, entweder grafisch oder über ihre Komponenten-Einstellungsdialogfenster.
Ausnahme: Im Bearbeitungsmodus können Sie die Treppe mit dem Befehl Mit der Treppe fortfahren aus der Pet-Palette die Grundlinie verlängern.
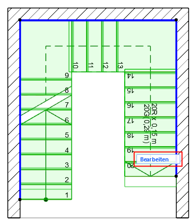
Zum Aufrufen des Bearbeitungsmodus wählen Sie eine Treppe in einem beliebigen Modellfenster aus und führen Sie eine der folgenden Aktionen durch:
•Klicken Sie auf die angezeigte Schaltfläche Bearbeiten.
•Verwenden Sie Planung > Treppen-Bearbeitungsmodus aufrufen.
Bearbeitungsmodus beenden
Führen Sie nun eine der folgenden Aktionen aus:
•Verwenden Sie ESC (evtl. mehrfach)
•Klicken Sie in der Anzeige-Palette auf Bearbeitungsmodus beenden (siehe unten).
•Verwenden Sie Planung > Treppen-Bearbeitungsmodus beenden.
Der Bearbeitungsmodus zeigt seine eigene Palette; diese unterscheidet sich je nach Fenster, in dem Sie sich befinden (2D, 3D, Schnitt/Ansicht).

Palette des Bearbeitungsmodus
Verwenden Sie die Anzeigepalette des Bearbeitungsmodus, um die Treppen-Komponenten nach Bedarf ein- oder auszublenden: Klicken Sie auf die Augensymbole, um diese zu öffnen bzw. zu schließen, selbst während des Bearbeitens.
Wenn Sie mit der rechten Maustaste auf eine der Komponenten (z. B. “Trittstufe”) in der Palette klicken, so wird nur diese Komponente angezeigt und die übrigen werden ausgeblendet.
Schematische versus Symbol-Ansicht (2D-Bearbeitungsmodus)
Aus 2D aufgerufen enthält der Bearbeitungsmodus des Treppen-Werkzeuges zwei Optionen zum Anzeigen der Treppe für die optimale Bearbeitung:

•Schematisch: zeigt die Treppe als vereinfachte, transparente 3D-Oberfläche an. Verwenden Sie diesen Modus zum Auswählen von Strukturen sowie von Tritt- und Setzstufen (verwenden Sie die Tab-Taste, um zwischen den verschiedenen hervorgehobenen Elementen zu wechseln):
•Symbol: Verwenden Sie diese Option zum Aufrufen der 2D-Symbolelemente der Treppe (z. B. Lauflinie)

Symbolansicht verwenden zum Bearbeiten der Lauflinie oder des Bruchsymbols
Verwandte Themen
Grafische Bearbeitung von Treppensymbolkomponenten
Laufliniensymbol: Einstellungen der Position und Anzeige
Treppen-Komponente zum Bearbeiten auswählen
Wählen Sie im Bearbeitungsmodus eine Trittstufen-, Setzstufen- oder Struktur-Komponente aus, um sie grafisch zu bearbeiten oder ihre Einstellungen zu verändern.

•Verwenden Sie das Element-Info-Etikett, um sicherzustellen, dass Sie die gewünschte Komponente auswählen. Blättern Sie bei mehreren überlappenden Elementen mit der Tab-Taste durch die Auswahl-Optionen.
•Die Einstellungen der ausgewählten Komponenten sind im Infofenster verfügbar (klicken Sie auf ...Einstellungen) sowie im Kontextmenü.
Anmerkung: Anders als im Fassaden-Bearbeitungsmodus steht im Treppen-Bearbeitungsmodus kein Werkzeugkasten zur Verfügung, weil Sie im Bearbeitungsmodus keine neuen Treppen-Komponenten erstellen können.
•Zur Aktivierung einer Strukturkomponente im 3D Bearbeitungsmodus müssen Sie eventuell die Treppe von unten betrachten oder die Anzeige der Tritt- bzw. Setzstufen ausschalten.

Mehrfachauswahl von Tritt- bzw. Setzstufen
Wenn Sie eine einzelne Trittstufe oder Setzstufe im Bearbeitungsmodus auswählen, erscheint ein “Griff” mit Symbolen zur Auswahl mehrerer Tritt- oder Setzstufen.
Klicken Sie auf eine der Griff-Optionen, um zusätzlich zu den bereits ausgewählten eine oder mehrere weitere Trittstufen/Setzstufen auszuwählen:
•alle Trittstufen/Setzstufen oberhalb
•alle Trittstufen/Setzstufen unterhalb
•alle Trittstufen/Setzstufen

Eine Setzstufe wird im 2D-Bearbeitungsmodus als einzelne Linie angezeigt. (Zeigen Sie mit dem Cursor darauf und verwenden Sie die Tab-Taste, wenn das Klicken auf die Setzstufen-Linie schwierig ist.)
Ausgewählte Setzstufe (Linie) im 2D-Bearbeitungsmodus
Umfeld anzeigen/verbergen
Der Begriff “Umfeld” bezieht sich in dieser Palette auf den Rest des Gebäudemodells, den Sie nach Bedarf zur Erleichterung der Bearbeitung ein- oder ausblenden können. Die zum Umfeld gehörenden Modellelemente werden zwar mittels der Vorauswahl-Informationen gedimmt identifiziert, aber im Treppen-Bearbeitungsmodus können Sie nur die Treppe bearbeiten, die Sie beim Aufrufen des Bearbeitungsmodus ausgewählt hatten.
Anmerkung: Wenn Sie Schwierigkeiten haben, die Kanten dieser Modellelemente im Umfeld zu erkennen, versuchen Sie das Kästchen Konturen anzeigen unter Ansicht > 3D-Darstellungsmodus > 3D-Stile einzuschalten.
Aufrufen der Treppen-Einstellungen im Bearbeitungsmodus
Um die Einstellungen der Treppe auf Systemebene zu bearbeiten, ohne den Bearbeitungsmodus zu verlassen, klicken Sie auf den Befehl Treppen-Einstellungen unten in der Palette.