Neuen Abstands-Modifikator erstellen
Verwandte Themen
Abstands-Modifikator bearbeiten
Abstands-Modifikatoren: Tipps und Tricks
Erstellen Sie Abstands-Modifikatoren, um ein platziertes profiliertes Element lokal anpassen und ändern zu können.
Ein Profil kann mehrere Abstands-Modifikatoren enthalten, und ein Abstands-Modifikator kann eine oder mehrere Maße (der gleichen Länge) enthalten. Außerdem kann ein Maß mehrere Kanten steuern.
Die folgenden Beispiele illustrieren diese Funktionen.
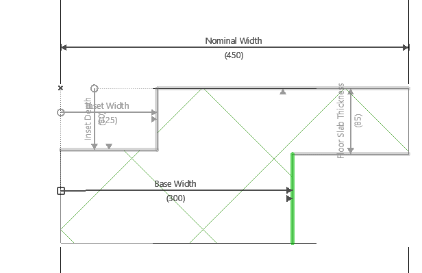
In diesem Beispiel erstellen Sie ein Profil mit dem Namen Betondecken Kantenfundament. Sie fügen bestimmten Kanten dieses Profils einen Modifikator mit dem Namen “Unterseite Breite” hinzu: Nachdem Sie das Element platziert haben, können Sie die Breite der Unterkante grafisch verändern.
1.Zeichnen Sie mithilfe des Schraffur-Werkzeugs im Profileditor den Querschnitt.
Die Nominale Höhe und Nominal Breite werden angezeigt. (Die Nominal-Breite und -Höhe wird im Paneel Design-Ebenen aktiviert.)
Die Streckungs-Modifikatoren werden ebenfalls angezeigt. (Die Anzeige der Streckungs-Modifikatoren wird im Ebenen-Teilfenster aktiviert.) Standardmäßig stimmen die Streckungs-Modifikatoren mit den Abmessungen der Nominal-Höhe und -Breite überein.
Erstellen Sie jetzt an bestimmten Profilkanten einen Abstands-Modifikator mit dem Namen Unterseite Breite.
2.Klicken Sie im Modifikatoren-Teilfenster auf Neuer Modifikator.
3.Geben Sie ihm im Dialogfenster Neuer Profil-Modifikator einen Namen: Unterseite Breite.
Sie können auch einen vorhandenen Namen in der Popup-Liste auswählen, wenn dieser Parameter bereits in einem anderen Profil im gleichen Projekt definiert wurde.
Der neu erstellte Modifikator erscheint in der Modifikatoren-Liste. Das gelbe Warndreieck weist darauf hin, dass dieser Modifikator noch keine Definition hat.
4.Im Profileditor sind Sie im Bemaßungs-Eingabemodus. (Wenn Sie nicht im Bemaßungs-Eingabemodus sind, klicken Sie auf die Schaltfläche Versatz-Bemaßung hinzufügen im Modifikatoren-Teilfenster, wie hier gezeigt.)
Sie haben verschiedene Möglichkeiten zum Definieren und Verankern der Bemaßung:
•Kante mit Knotenanker
•Zwei Kanten an zwei Knoten (Verankert über automatische Abschlussknoten)
•Knoten und Knoten (mit benachbarter Kante)
Während der Eingabe werden Kanten, die versetzt werden können, schwarz dargestellt; wenn Sie den Mauscursor darauf bewegen, werden sie blau hervorgehoben.
Kante mit Statischem Knotenanker
1.Klicken Sie auf die Kante, die versetzt werden soll.
2.Bewegen Sie jetzt den Cursor: Der Parametername des Modifikators erscheint, und Sie sehen eine Vorschau seiner Maßlinie.
3.Klicken Sie auf einen Schraffurknoten (dies ist der Anker), ziehen Sie anschließend die resultierende Maßlinie und klicken Sie erneut, um sie zu platzieren.
Das Ergebnis: Sie haben einen Kantenversatz-Parameter erstellt, der vom angeklickten Ankerknoten aus in der angegebenen Richtung geändert werden kann.
Der Maßlinien-Endpunkt ist ein Kreis als Hinweis darauf, dass der Anker ein Knoten ist (und nicht ein statischer Punkt).

Modifikator: Versatz Einfache Kante, Verankert an Schraffurknoten
Der Anker ist dem Schraffurknoten zugeordnet; wenn sich also die Schraffurgeometrie des Profils ändert, folgt der Ankerpunkt (und damit auch der Modifikator) diesen Änderungen.
Kante mit Statischem Anker
Alternativ dazu können Sie auf eine beliebige Stelle im Profileditor klicken, um einen statischen Punktanker zu erstellen (hier am Profilursprung).
Ziehen Sie anschließend die resultierende Maßlinie und klicken Sie erneut darauf, um sie zu platzieren.
Der Maßlinien-Endpunkt ist ein Rechteck als Hinweis darauf, dass der Anker ein statischer Punkt ist (und nicht ein Knoten).
Zwei Kanten an zwei Knoten
Klicken Sie auf die zu versetzende Kante, und klicken Sie anschließend eine zweite Kante an. Wenn Sie den Cursor verschieben, findet die Maßlinie automatisch den nächstgelegenen Endknoten für die Verankerung.
Ziehen Sie anschließend die resultierende Maßlinie und klicken Sie erneut darauf, um sie zu platzieren.
Das Ergebnis: Sie haben einen Versatz-Parameter mit zwei Kanten erstellt. Durch Ändern dieses Parameters werden beide Kanten geändert.

Modifikator versetzt zwei gegenüber liegende Kanten
Die beiden angeklickten Kanten müssen nicht parallel zueinander sein.
Knoten und Knoten mit benachbarter Kante
Verwenden Sie diese Methode, um einen Modifikator zu erstellen, dessen Maßlinie nicht senkrecht zur Versatzkante verläuft.
Klicken Sie auf zwei Knoten, die die Maßlinie bilden.
Klicken Sie anschließend auf die zu versetzende Kante. Die Kante muss nicht senkrecht zur Maßlinie liegen, aber sie muss an einen der angeklickten Knoten angrenzen.

Ergebnis: Die Kante wird parallel verschoben, der Versatz erfolgt in Richtung der Maßlinie.