Crea un nuovo Modificatore di sfalsamento
Argomenti correlati:
Edita Modificatore di sfalsamento
Modificatori di sfalsamento Trucchi e consigli
Creare modificatori di sfalsamento per consentire a un'istanza di elemento Profilato posizionata di essere personalizzata e modificata localmente.
Un profilo può includere più Modificatori di sfalsamento e un Modificatore di sfalsamento può includere una o più quote (della stessa lunghezza). Inoltre, una singola dimensione può controllare più spigoli.
I seguenti esempi illustrano queste funzionalità.
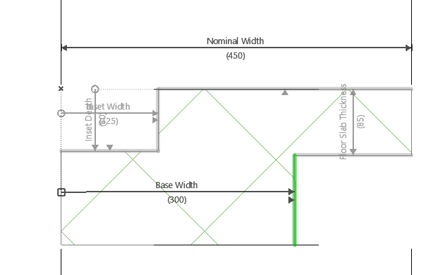
In questo esempio, si crea un profilo chiamato Basamento bordo solaio in cemento. A determinati bordi di questo profilo si aggiunge un modificatore chiamato "Larghezza base": dopo aver posizionato l'elemento, è così possibile modificare graficamente il bordo della Larghezza della base.
1.Nell'Editor profilo, disegnare la sezione trasversale usando lo Strumento Retino.
Vengono visualizzate l'Altezza Nominale e la Larghezza Nominale. (Il visualizzazione di Larghezza/Altezza nominali è attivata nel pannello Lucidi Design.)
Vengono anche mostrati i Modificatori di allungamento. (I Modificatori di allungamento sono attivati nel pannello Lucidi design.) Per impostazione predefinita, i modificatori di allungamento coincidono con le quote di Altezza/Larghezza nominali.
Ora creare un Modificatore di sfalsamento chiamato Larghezza base su determinati bordi del profilo.
2.Nel pannello Modificatori, fare clic su Nuovo modificatore.
3.Nella finestra di dialogo Modificatore profilo nuovo, assegnargli il nome Larghezza base.
Oppure scegliere un nome esistente dall'elenco di scelta rapida, se questo parametro è già stato definito in un altro profilo nello stesso progetto.
Il modificatore appena creato viene visualizzato nell'elenco dei Modificatori. Il triangolo di avviso iniziale indica che questo modificatore non ha ancora una definizione.
4.Nella finestra Editor profilo è attiva la modalità di immissione delle quote. (Se non si è in modalità quota, fare clic sul pulsante Aggiungi Quota di Sfalsamento nel pannello Modificatore come mostrato qui.)
Ci sono diverse opzioni per definire la Quota e ancorarla:
•Bordo con ancoraggio del nodo
•Due Bordi a due Nodi (ancorata da nodi automatici delle estremità)
•Nodo e Nodo (con Bordo adiacente)
Durante l'immissione, i bordi che possono essere sfalsati sono mostrati in nero ma quando si passa il cursore su di essi vengono visualizzati con evidenziazione blu.
Bordo con ancoraggio del nodo statico
1.Fai clic sul bordo da sfalsare.
2.Ora trascinare il cursore: viene visualizzato il nome del parametro del modificatore e si trascina la sua linea di quota.
3.Fare clic su un nodo Retino (questo è l'ancoraggio), quindi trascinare la linea di dimensione risultante e fare nuovamente clic per posizionarla.
Il risultato: si è creato un parametro di sfalsamento del bordo che può essere sfalsato nella direzione data, ancorato dal nodo cliccato.
L'estremità della quota è un cerchio, indicando che il suo ancoraggio è un nodo (invece di un punto statico).

Modificatore: sfalsamento di Bordo singolo, ancorato a Nodo del retino.
L'ancoraggio è associato al nodo Retino, quindi se la geometria del Retino del profilo cambia, il punto di ancoraggio seguirà queste modifiche (insieme al modificatore).
Bordo con ancoraggio statico
In alternativa, fare clic in qualsiasi punto nell'Editor profilo per creare un punto di ancoraggio statico (qui, all'origine del profilo).
Quindi trascinare la linea di quota risultante e fare nuovamente clic per posizionarla.
L'estremità della quota è un quadrato, indicando che il suo ancoraggio è un punto statico (invece di un nodo).
Due Bordi a due Nodi
Fare clic sul bordo da sfalsare, quindi fare clic su un secondo bordo. Mentre si sposta il cursore, la quota trova automaticamente i nodi finali più vicini a cui ancorarsi.
Quindi trascinare la linea di quota risultante e fare nuovamente clic per posizionarla.
Il risultato: si è creato un parametro di sfalsamento con due spigoli. La modifica di questo parametro modifica entrambi i bordi.

Il Modificatore sfalsa due Bordi opposti
I due bordi su cui si fa clic non devono necessariamente essere paralleli.
Nodo e Nodo con Bordo adiacente
Utilizzare questo metodo per creare un modificatore la cui Quota di ancoraggio non è necessariamente perpendicolare al bordo sfalsato.
Fare clic su due nodi che rappresentano la Quota.
Quindi fare clic sul bordo da sfalsare. Il bordo non deve essere perpendicolare alla Quota, ma deve essere adiacente a uno dei nodi cliccati.

Il risultato: il bordo viene sfalsato perpendicolarmente, ma viene misurato dalla Quota specificata.