Примечание: Управление отображением элементов в окнах Фасадов, Разверток и 3D-документов на основе Плана этажа практически идентично.
Управляющие элементы панели Показ модели диалогового окна установки параметров Разреза предоставляют возможность настроить внешний вид (штриховку, контуры, покрытия):
•КОНТУРЫ ЭЛЕМЕНТОВ НА ГРАНИЦАХ РАЗРЕЗА
в окне разреза.
Далее приводится краткое описание этих возможностей.
Для получения информации о каждом элементе управления см. Параметры Разреза/Фасада - панель Показ Модели.
По умолчанию элементы в сечении показываются с использованием их собственных линий и перьев. Вы можете изменить внешний вид элементов в сечении в окне разреза, отметив маркер Одинаковое перо для элементов в плоскости сечения в панели Показ модели параметров разреза. Затем Вы можете выбрать линии и цвета для показа элементов в сечении только для этого разреза.
Цвет и векторная штриховка покрытия могут отображаться только на видимых поверхностях элементов в окнах Разрезов/Фасадов/Разверток.
Эти параметры, присутствующие в панели Показ Модели диалога Параметров Разреза, позволяют применять покрытия (с оттенением или без) для видимых элементов окна Разреза:
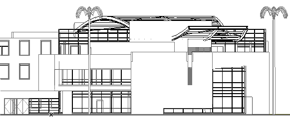
На приведенном ниже фасаде активировано отображение Векторной Штриховки (она заметна на поверхностях стен) и Солнечных Теней (отбрасываемых свесом крыши).
Еще один эффект - это отображение видимых поверхностей в режиме "оттенения", выявляющем криволинейные формы. Можно использовать сочетания этих эффектов (отбрасывания теней и оттенения) в одном Разрезе:

Рассмотрим следующую линию сечения на плане этажа:
Обратите внимание, этот разрез содержит западный фасад той части здания, которая расположена недалеко от линии сечения, а также удаленную часть, которая выступает на север. В этом разрезе ближайшие части здания и его удаленная часть имеют идентичное представление и поэтому их невозможно распознать:
Для различного показа элементов, находящихся на переднем и на заднем плане, можно воспользоваться функцией Учета Удаленной области: активируйте маркер Учет Удаленной Области, присутствующий в панели Показ Модели диалога Параметров Разреза, и настройте цвет контуров элементов, расположенных на заднем плане.
Вернувшись на План Этажа, обратите внимание на появившуюся линию, расположение которой определяет начало Удаленной Области.
Выберите эту линию и переместите ее в соответствии с иллюстрацией:
Примечание: Линия удаленной области относится к "линии детализации маркера".
См. также Показ линий детализации маркера.
Давайте теперь опять откроем разрез. Как видим, элементы в удаленной области отличаются от близлежащих элементов.
КОНТУРЫ ЭЛЕМЕНТОВ НА ГРАНИЦАХ РАЗРЕЗА
“Контуры Элементов” могут применяться для элементов, отображаемых в окнах Сечений, Фасадов или Разверток и выступающих за пределы горизонтального диапазона Сечения.
Для настройки способа отображения границ элементов воспользуйтесь разделом Контуров Элементов на Границах Разреза, находящимся в панели Показа Модели диалога Параметров Разреза.
На нижнем рисунке окончание левой стены находится за пределами линии сечения, поэтому линия контура стены отсутствует.
Вы можете активировать отображение контура в месте окончания линии разреза, даже если окончание элемента находится за пределами линии сечения.
Если вы выберете для параметра Добавления Контуров Элементов вариант “Собственные Контуры”, то границы элементов будут отображаться при помощи перьев линий контуров, настроенных в диалогах Параметров этих элементов. При выборе варианта Замены Контуров становятся доступны настройки Типа и Пера Линии Контура Границы: