平面図/3Dで一覧表項目を選択する

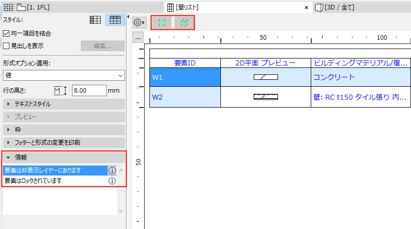
[一覧表]ウィンドウで任意の項目を選択し、[平面図で選択]アイコンをクリックすると、平面図ウィンドウに表示されます。

SelectOnFloorPlan.png 

その右側にある[3Dで選択]アイコンを使用すると、3Dウィンドウに移動し、選択された項目がズームされます。

Selectin3D.png 

一覧表で何も選択していない場合、これらのコマンドでは平面図/3Dウィンドウで一覧表に表示されている全ての要素が選択されます。

注記:ロックされた、または非表示のレイヤー上にある一覧表の要素を編集または選択することはできません。

SelectIn3DHidden.png 

ロックされた、または非表示のレイヤー上の一覧表の要素」を参照してください。