명확하게 또는 마키로 선택된 항목에만 적용되는 3D 디스플레이는...
•우클릭하여 3D에서 선택항목/마키 보이기 명령을 사용하거나,
•뷰 > 3D 뷰에서 요소 > 3D에서 선택항목/마키 보이기를 사용합니다.
(또는 이 명령을 위해 3D 시각화 툴바 컨트롤을 사용합니다.)
평면가 명확하게 선택된 요소들과 마키 선택을 모두 포함하면, 이 명령은 마키를 무시하고, 명확하게 선택된 요소들만 보이게 됩니다.
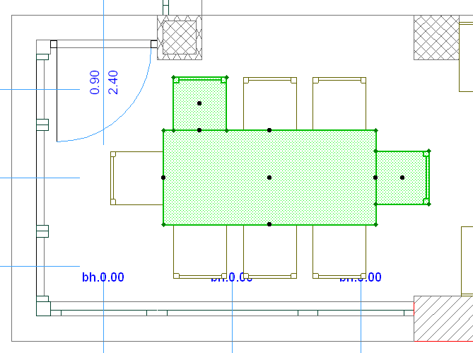
3D에서 마키 영역
선택항목이 마키 영역이라면, 3D 창의 캡션에 "마키" 언급이 포함됩니다.
마키 선택에 관한 추가 정보는, 마키 영역 참조.

기본 설정에서, 마키 안의 요소는 3D에서 디스플레이됩니다.
이를 변경하려면, 뷰 > 3D 뷰에서 요소 > 3D에서 요소 필터 및 자르기에서 마키 효과 컨트롤을 사용합니다.
3D 창에서 마키된 요소
마키로 경계가 정해진 3D 창에서 요소를 만드는 경우, 새로운 요소는 마키 영역 안에서 그리면 3D 창에 나타납니다.
마키-기반 3D 뷰의 경계 밖에 새 요소를 배치하거나, 기존의 요소를 마키 경계 밖에 드래그하면, 그 요소는 3D 창에서 곧바로 사라집니다.
그러나, 평면으로 갈 때, 그 요소를 보게 됩니다. 마키 영역을 변경하고 (또는 없애고) 3D 창으로 되돌아가 그것을 체크합니다.
마키 영역이나 3D 단면도법에서 생긴 트림된 3D 뷰에서 하나 또는 그 이상의 요소들을 선택하면, 일부 요소들은 부분적으로만 보이지만 요소 전체의 선택 점들이 나타나고 모든 노드와 모서리들은 커서로 발견될 수 있습니다.