Перемещение/Поворот/Восстановление Расположения Ссылки

Эти три команды доступны в панели Фоновой Ссылки:

TraceMove.png 

Слева направо:

Переместить: Нажмите эту кнопку, чтобы переместить Фоновую Ссылку.

Повернуть: Данная кнопка позволяет повернуть Ссылку.

Восстановить: Нажатие этой кнопки возвращает перемещенную или повернутую Ссылку в ее исходное положение.

Примечание: Эти же команды присутствуют в контекстном меню, вызываемом щелчком правой кнопкой мыши на Фоновой Ссылке; и в выпадающем меню Фон, расположенном в Стандартном табло команд.

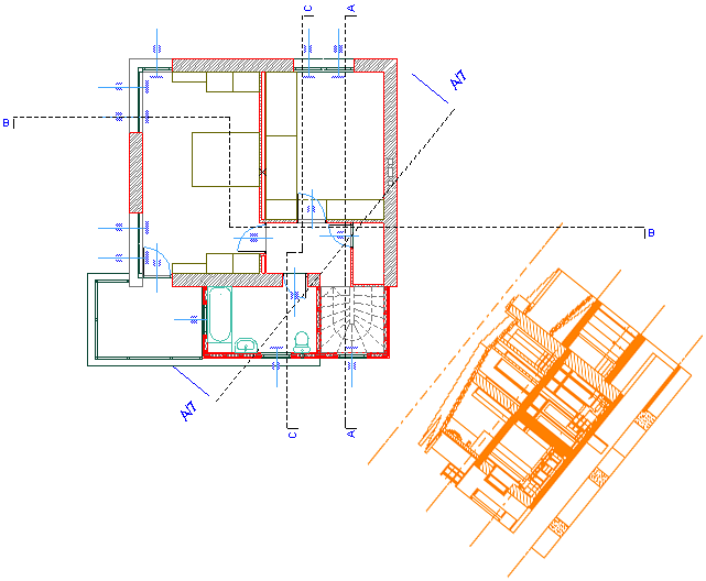
На приведенной ниже иллюстрации проекция Разреза, отображенная в качестве Фоновой Ссылки, повернута в окне Плана Этажа, содержащего маркер Разреза:

3-story-rotated-section.png 

Команды Перемещения/Поворота Ссылки отражаются на координатных данных Табло Слежения (значения координат вычисляются согласно системе координат Активного Вида, а не Ссылки).