Editar Afastamento Modificador
Tópicos desta seção
Reatribuir inserção de dimensão
Adicionar/Remover Arestas a uma Cota de Afastamento
Adicionar Cotas a um Modificador para Afastamento
Remover Arestas ou Cota Inteira
Criar Novo Modificador para Afastamento - Exemplo
Modificadores para Afastamento: Dicas e Truques
Reatribuir inserção de dimensão
1.Ative o modificador no Criador de Perfil (clique na Dimensão de Afastamaneto do Criador de Perfil, ou selecione-o na lista de Modificadores do Gestor de Perfil)
2.Verifique o feedback para ver a inserção da borda/nó.
3.Clique na extremidade da Cota que você deseja redefinir.
4.Mova para outro nó ou aresta e clique para reatribuir o ponto de inserção da Cota.
Adicionar/Remover Arestas a uma Cota de Afastamento
Você pode vincular múltiplas arestas a uma única Cota. Todas as arestas se movem juntas, ao mesmo tempo.
Neste exemplo, o modificador existente é chamado de “Topo”.
1.No Criador de Perfil, passe o mouse sobre a Cota ou sobre uma borda do Topo atribuída ao modificador para ver o controle.
2.Clique no controle que aparece: Adicionar/Remover Borda.
3.À medida que você move o cursor, as bordas elegíveis (mostradas inicialmente em preto) são destacadas em azul. Clique para escolher uma borda.
4.Um segundo clique define sua direção.
5.A segunda borda é adicionada à Cota existente.
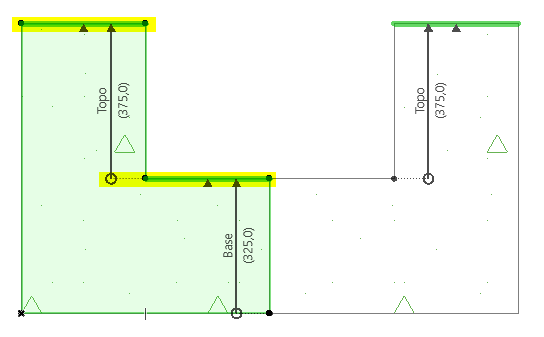
Adicionar Cotas a um Modificador para Afastamento
Você pode adicionar várias cotas ao mesmo Modificador para Afastamento. Cada cota subsequente terá o mesmo tamanho. Isso permite que bordas diferentes no mesmo Modificador tenham âncoras dedicadas - no caso em que essas âncoras são movidas por outros Modificadores.
1.No Gestor de Perfil, selecione o Modificador existente (Topo).
2.Clique no ícone Adicionar Cota.
3.Conforme você move o cursor, as bordas elegíveis e os nós ancorados são realçados em azul. Clique para escolher uma aresta e ancore a cota da maneira normal. Seu comprimento de cota é o mesmo que o existente, definido no Modificador (definido pela primeira cota).

4.O Modificador único resultante controla duas bordas ancoradas separadamente.
Neste exemplo, uma Cota de Afastamento “Topo” no lado esquerdo é ancorada a uma borda que em si é outro modificador (Base). Observe que a Cota “Topo” do lado direito tem seu própria âncora.
Se uma âncora se move, também se move a cota que ela ancora. Nesse caso, se a Base for afastada, a cota Superior do lado esquerdo (ancorada à Base) também se moverá.

A borda superior do lado direito, no entanto, permanece no lugar: sua âncora não foi movida.
Remover Arestas ou Cota Inteira
1.No Gestor de Perfil, ative o Modificador que você deseja editar; ou clique em um Afastamento de Cota cinza para ativá-lo e selecioná-lo
2.No Criador de Perfil, flutue sobre a borda ou cota.
3.Clique no controle que aparece: Adicionar/Remover Borda.
4.Passe o mouse sobre a borda para que esta fique vermelha: clique para apagar.
A borda é apagada.
Se você passar o mouse sobre a última borda ou cota, todas as cotas e bordas serão destacadas em vermelho. Quando todas as cotas em um modificador forem apagadas, esse Modificador recebe um aviso no Gestor de Perfil.
Se necessário, clique em Adicionar Cota de Afastamento para criar uma nova Cota e uma borda designada para esse Modificador.
1.No Gestor de Perfil, selecione o Modificador a ser apagado.
2.Clique em Apagar.
Todas as Cota de Afastamento e bordas designadas nesse Modificador serão apagadas.
Na lista do Modificador, clique duas vezes no nome para editá-lo.