Přesun/Otočení/Obnovení odkazu

Ikony těchto tří příkazů jsou dostupné na paletce Průhledové zobrazení a odkaz:

TraceMove.png 

Zleva:

Přesun: Kliknutím přesuňte odkaz na libovolné umístění.

Otočení: Kliknutím otočte odkaz.

Obnovení: Pomocí této ikony můžete obnovit původní výchozí pozici odkazu, který jste posunuli.

Poznámka: Stejné příkazy jsou dostupné v kontextové nabídce po kliknutí pravým tlačítkem na libovolné okno zobrazující odkaz; a v seznamu příkazů pro odkazy ve standardní nástrojové liště.

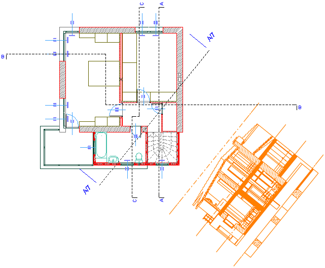
Na obrázku níže je bod pohledu řezu zobrazený jako odkaz a otočený podél půdorysu, který obsahuje značku řezu:

3-story-rotated-section.png 

Příkazy Přesunout/Rotovat aplikované na odkaz se projeví v souřadnicových datech informátoru (souřadnicová data se počítají podle aktivního souřadného systému, ne podle systému odkazu).