Μετατόπιση/Στροφή/Επαναφορά Αναφοράς
Αυτά τα τρία εικονίδια-εντολές είναι διαθέσιμα από την παλέτα Ίχνος και Αναφορά:
Από αριστερά:
•Μετατόπιση: Κάντε μετατόπιση της Αναφοράς σε μία άλλη θέση.
•Στροφή: Κάντε στροφή της Αναφοράς.
•Επαναφορά: Χρησιμοποιήστε αυτό το εικονίδιο, για επαναφορά της Αναφοράς στην αρχική της προκαθορισμένη θέση, μετά από μετατόπισή της.
Σημείωση: Οι ίδιες εντολές είναι διαθέσιμες από το θεματικό μενού (δεξί-κλικ σε οποιοδήποτε παράθυρο εμφανίζει μία Αναφορά) και από την pop-up λίστα εντολών για την Αναφορά στην Τυπική Γραμμή Εργαλείων.
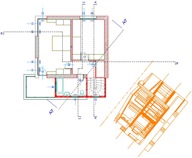
Στη παρακάτω εικόνα, το σ-άποψης Τομή εμφανίζεται σαν Αναφορά και είναι στραμμένο δίπλα από την Κάτοψη που περιέχει το σημάδι Τομής:
Εντολές Μετατόπισης/Στροφής που εφαρμόστηκαν στην Αναφορά, θα αντανακλώνται στα δεδομένα συντεταγμένων του Ιχνηλάτη (οι συντεταγμένες υπολογίζονται σύμφωνα με το σύστημα συντεταγμένων του Ενεργού και όχι της Αναφοράς).