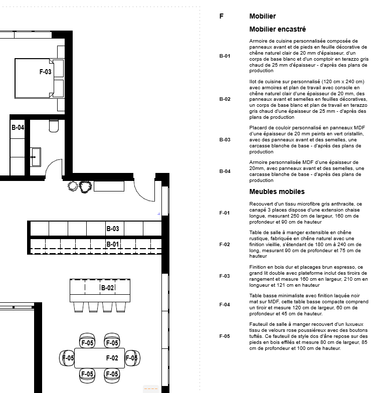
Colocar a Legenda do keynote no leiaute

1.Abra um Leiaute que já contenha desenhos.

2.Na paleta Keynotes, clique em Colocar Legenda.

3.O objeto legenda padrão atual é colocado no Leiaute.

Nota: Você pode colocar a legenda em qualquer vista, mas ela só exibe dados quando colocada em um Leiaute.

KeynoteLegend.png