形式オプション(一覧表)

[一覧表]ウィンドウの左側の形式コントロールを使用すると、現在の一覧表の形式を設定できます。

FormatSchedule.png 

このセクションのトピック

行/列のサイズ変更

ズームを調整する/現在のウィンドウに合わせる

行表示または列表示

均一項目を結合

形式オプション適用:

見出しを表示

テキストスタイル

セル枠

印刷可能なフッターを追加する

元に戻す/やり直し 形式の変更

ロックされた、または非表示のレイヤー上の一覧表の要素

関連トピック

平面図/3Dで一覧表項目を選択する

行/列のサイズ変更

以下のいずれかを実行します。

[一覧表セルサイズ]の数値を調整するには、一覧表の上部にある[...]ボタンをクリックしてダイアログボックスを使用します。

サイズ変更ボタンを使用すると、内容に合わせて行と列を自動的に調整できます。また、必要に応じて幅/高さの値を入力することもできます(リスト項目の複数選択が可能)。

ScheduleCellSize.png 

[行の高さ]フィールドを設定します。

RowHeights.png 

個々の行と列の高さを調整するには、一覧表の左上にあるセル境界を手動でドラッグします。

行または列の端をダブルクリックすると、内容に合わせて行または列が調整されます。

FitColumnWidth.png 

ダブルクリック:幅をセルの内容に合わせます

ズームを調整する/現在のウィンドウに合わせる

下部スクロールバーからポップアップを使用してズームを調整します。

現在のウィンドウサイズに一覧表を合わせるには、[幅に合わせる]アイコンをクリックします。

IESFitWidth.png 

行表示または列表示

2つの[スタイル]ボタンを使用して、一覧表フィールドの行表示または列表示を選択します。

IESByColumnRow.png 

均一項目を結合

このボックスをオンにすると、一覧表の均一項目が1つのレコードにグループ化されます。

オフの場合は、全ての項目が個別にリストされます。

均一項目と見なされるのは、その「コア」値(要素タイプ、材質、向きなど)が同じである項目です。通常、コア値は設定ダイアログで定義します。

2つの要素間の計算値(面積、体積など)のみが異なる場合は、均一と見なされます。

長さの値については、以下に示すように少し複雑になります。

要素の長さはコア値ではありません。通常はグラフィック操作による入力に基づいて計算されます。したがって、壁の長さの違いは無視されます。長さが異なる同一の壁は一覧表で結合されます。

要素の高さはコア値であり、通常は設定で定義します。したがって、壁の高さの違いが考慮されます。高さが異なる同一の壁は一覧表では結合されません。

長さタイプの値を返す数式定義プロパティは常に「コア値」と見なされます。これらのプロパティ値が同一でないかぎり、このような長さタイプのプロパティを持つ要素は結合されません。

形式オプション適用:

下のコントロールで形式を設定する項目を選択します。

ApplyOptionsTo.png 

[プレビュー]を選択すると、一覧表に要素プレビュー画像が表示されます(該当する場合) (「プレビュー画像の形式設定」を参照)。

見出しを表示

このオプションを使用すると、残りの要素データの上(または左端)の個別の行に、1つまたは複数の一覧表フィールドのデータを表示できます。

[編集]をクリックして[見出し設定]を開くと、見出しデータの内容および表示を定義できます。

HeadlineSet.png 

[見出しのソース]:一覧表の最初(あるいは最初の10フィールド)のフィールドを見出しに表示できます。

レコードを行で表示する場合、見出しデータは他のフィールドの左端に個別の列として表示されます。

ShowHeadlineExample.png 

[見出し前に分離行を挿入]: このボックスをオンにすると、各見出し行の前に空白の行が挿入されます。

[接頭文字として見出しテキストを挿入]:このボックスをオンにすると、列/行の見出し名が値の接頭文字として見出し行に追加されます。

必要に応じて、[形式オプション適用]で見出し項目を選択して、見出しデータのテキスト形式をカスタマイズします。

FormatHeadline.png 

詳細については、後述の「一覧表のヘッダー」を参照してください。

テキストスタイル

[形式オプション適用]で選択した項目タイプのテキスト形式オプションを設定します。

注記:「プレビュー」を選択した場合は使用できません。

ISFormatText.png 

[テキストのお気に入り]:ポップアップをクリックすると、テキストツールで保存されたお気に入りが適用されます。

お気に入りの適用」も参照してください。

[フォントサイズ]: フォントの高さを、[オプション]→[プロジェクト設定]→[作業単位]で定義した選択に従って、mm(メートル単位)またはポイント(インペリアル単位)で入力します。

[フォントスタイル]:太字、斜体、下線、または取り消し線を選択します。

注記:ヘッダーセルのフォントスタイルは個別にカスタマイズできます (他の全てのセルは、タイプ別にまとめて変更されています)。

[行間隔]:このコントロールは、行間隔値(垂直線の間隔)をパーセントで変更します。数字を入力するか、25パーセント刻みで値を変更する矢印を使用します。

[幅]:パーセント値を入力して、テキスト文字幅を変更します。

[間隔]:テキスト文字間の間隔を変更します。

[テキストを折り返し]:このオプションをオンにすると、列幅に合わせて自動的にテキストが折り返されます。

セル

[形式オプション適用]で選択した項目タイプのセル枠オプションを設定します。

ScheduleBorderLines.png 

3つのアイコンのいずれかを選択して、表示するセル枠を設定します。

[なし]: 枠は描画されません。

[分離線のみ]:選択された線種が各項目の下に表示されます。レコードを列で表示する場合は、線は右側に表示されます。

[全ての枠]:選択した線種がセルの周囲に表示されます。

セル枠線の線種とペンを選択します。

一覧表内のプレビューと画像」を参照してください。

印刷可能なフッターを追加する

1.[フッターを印刷する]ボックスをオンにすると、一覧表に印刷専用のフッターを追加できます。

2.[編集]をクリックして[フッターの設定]を開き、フッターを定義します。

ISFooterSettings.png 

[内容]:印刷するフッターに表示する項目をオンにします。左側の矢印を使用して、フッターの項目の順序を変更できます。

[テキスト特性]:印刷可能なフッターのテキスト形式オプションを設定します。下部にあるプレビューを参考にしてください。

3.[OK]をクリックします。

元に戻す/やり直し 形式の変更

一覧表の形式設定に対して最後に行った変更を元に戻す/やり直すには、これらのボタンを使用します。

UndoRedoFormatIS.png 

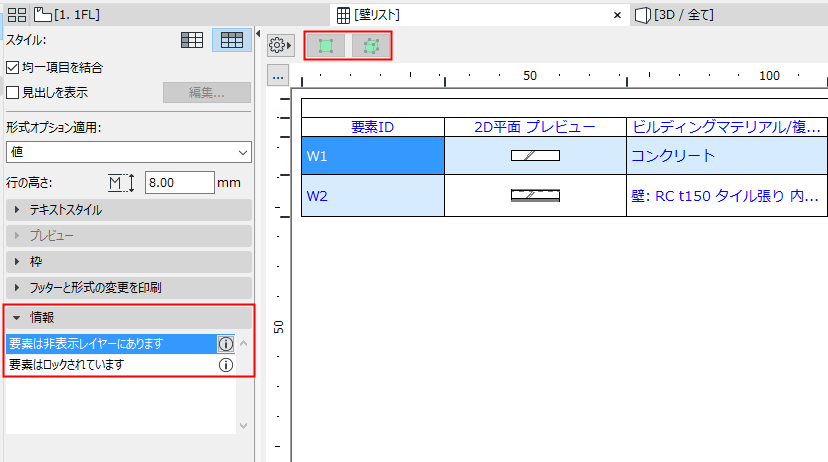
ロックされた、または非表示のレイヤー上の一覧表の要素

ロックされた、または非表示のレイヤー上にある一覧表の要素を編集または選択することはできません。

この情報は選択した要素の情報パネルに表示されます。

SelectIn3DHidden00201.png 

平面図/3Dで一覧表項目を選択する」も参照してください。