Показать Выборку/Бегущую Рамку в 3D
Для отображения в 3D только выбранных элементов или области Бегущей Рамки:
•Сделайте щелчок правой кнопкой мыши и выберите из контекстного меню команду Показать Выборку/Бегущую Рамку в 3D ИЛИ
•Воспользуйтесь командой меню Вид > Элементы в 3D-виде > Показать Выборку/Бегущую Рамку в 3D
Эту же команду можно активировать при помощи соответствующей кнопки, находящейся в Табло Команд 3D-визуализация.
Если на Плане Этажа выбраны какие-либо конструктивные элементы, то активация данной команды приведет к отображению в 3D только этих элементов. Область Бегущей Рамки в данном случае будет игнорироваться.
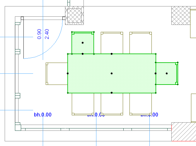
Бегущая Рамка в 3D
Если отображение модели в 3D ограничено Бегущей Рамкой, то название вкладки/окна содержит слова “Бегущая Рамка”.
Для получения дополнительной информации о способах создания области Бегущей Рамки см. Бегущая Рамка.

По умолчанию в 3D отображаются элементы, находящиеся внутри Бегущей Рамки.
Эти настройки можно изменить в разделе Бегущая Рамка диалога Вид > Элементы в 3D-виде > Фильтрация и Отсечение Элементов в 3D.
См. Диалог Фильтрация и Отсечение Элементов в 3D.
Элементы в 3D-окне, построенном на основе бегущей рамки
Если Вы построите элемент в 3D-окне, ограниченном бегущей рамкой, он будет видимым, если окажется расположенным внутри области бегущей рамки.
Если же Вы разместите в 3D-окне новый элемент за пределами границы бегущей рамки, или же переместите элемент за пределы области бегущей рамки, то он сразу же исчезнет из 3D-окна.
Если же Вы вернетесь на план этажа, то увидите их там. Измените расположение бегущей рамки или вообще удалите ее и возвратитесь в 3D-окно, чтобы увидеть построенный элемент.
Если изображение в 3D-окне оказывается срезанным либо в результате использования бегущей рамки, либо в связи с применением команды Вид > Элементы в 3D-виде > С 3D-разрезами, то некоторые из элементов видны частично. Если такие элементы выбрать, то появляются точки выбора всего элемента и с помощью курсора можно обнаружить все его вершины и стороны.