Immissione Scala di base
Per prendere confidenza con lo Strumento Scala, iniziare a posizionare le scale nel progetto utilizzando le impostazioni predefinite o uno dei Preferiti Scala.
È possibile eseguire l'immissione in Pianta e nella Finestra 3D, con metodi analoghi a quelli usati per l'immissione di PoliLinee e Muri. Durante l'immissione del percorso della polilinea, il riscontro grafico immediato mostra quale sarà l'aspetto della scala risultante.
La Scala viene immessa lungo una Linea Base. Ecco alcune delle principali preferenze di immissione nella Palette Informazioni:
Metodi di immissione (Palette Informazioni)
Posizione Linea Base della scala: Sinistra, Destra, Centro
Immissione della scala in senso ascendente o discendente
Aggiungi parapetto scala (destra, sinistra, entrambi i lati)
Esempio 1: Scala d'ingresso
1.Aprire la finestra di dialogo Settaggi Scala ed esaminare le impostazioni di Geometria e Posizionamento.
Questa scala non ha un collegamento superiore ed ha un numero fisso di 8 montanti. Sarà una scala diritta con nessuna svolta, pertanto il tipo di svolta non è rilevante.
Nella Pianta o nella finestra 3D:
1.Fare clic per iniziare l'immissione della Scala.
2.Osservare il riscontro: poiché il numero delle alzate è fisso, la lunghezza della scala viene visualizzata durante l'immissione come un contorno d'anteprima.
3.Fare un doppio clic per completare la scala.

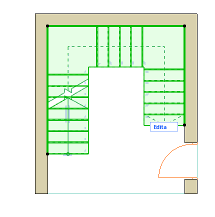
Esempio 2: Scala con collegamento superiore
Qui, creiamo una scala interna fino al piano superiore.
Configurare i Settaggi Scala come nell'illustrazione. La parte superiore di questa scala è collegata al piano superiore ed ha un numero fisso di 18 montanti. Questa scala avrà dei pianerottoli, e il tipo di pianerottolo è impostato su Pianerottolo Automatico.
Nella Pianta o nella finestra 3D:
1.Fare clic per iniziare l'immissione della scala lungo i muri, come quando si disegna una polilinea.
2.Fare clic su ciascuno dei due angoli del muro, e poi doppio clic per completare la scala. Il riscontro d'anteprima mostra che saranno comunque situate 18 alzate, come previsto dalle impostazioni predefinite.

La Scala è completa. Il tipo di rotazione definito (Pianerottolo) è stato automaticamente collocato in corrispondenza di ciascuna svolta (punti sulla Linea Base d'immissione).

Svolte e segmenti
Le Scale sono costituite da Svolte e Segmenti.
•Impostare Tipo di svolta dell'intera Scala intera in Settaggi Scala. (Scegliere Pianerottolo Automatico oppure uno dei due tipi di Ventaglio).
Vedere Tipo di Curva Scala.
•Il tipo di segmento è sempre "Rampa" per impostazione predefinita. È possibile modificare il tipo di segmento in ogni istante, per ciascun segmento, durante l'immissione.
Vedere Tipo Segmento Scala.
•È possibile personalizzare le opzioni del Tipo di svolta - per qualsiasi segmento o svolta specifica - dopo l'immissione della scala.
Vedere Editare il Tipo di Svolta di una scala.
Crea Scala con Bacchetta Magica.
Utilizzare il metodo Bacchetta magica (Barra Spaziatrice + clic) per generare automaticamente una scala lungo il bordo o il poligono su cui si è fatto clic.
•Fare clic sul punto da cui si vuole che la scala abbia origine.
•Il punto su cui si è fatto clic sarà la base della scala (anche se il metodo di immissione è Verso il basso).
•La Linea Base della scala viene posizionata lungo il poligono/la polilinea tracciato/a.
Cambiare la Linea Base se necessario nella Palette informazioni o in Settaggi Scala (Sinistra, Destra o Centro della scala). Ciò consente di variare il posizionamento della scala (all'interno o all'esterno del poligono/polilinea su cui si è fatto clic).

•Per creare una scala intorno a un Muro autoportante: fare clic sul Muro.
