Создание нового Модификатора Смещения - пример
Для Сложного Профиля можно настроить несколько Модификаторов Смещения, причем один Модификатор Смещения может определять более одного размера (с одинаковыми значениями). Кроме того, отдельный размер может определять геометрию нескольких ребер.
Ниже приведены примеры использования этих возможностей.
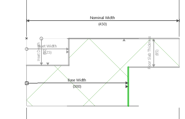
В этом примере рассматривается создание профиля Торца Фундаментной Плиты. Можно применить модификатор “Ширины Основания” для определенных ребер этого профиля, чтобы получить возможность графического редактирования размещенного элемента.
1.В окне Редактора Профилей при помощи Инструмента Штриховка начертите поперечное сечение Профиля.
Отображается Номинальная Высота и Номинальная Ширина. (показ Номинальной Высоты/Шириныактивируется в панели Слоев Конструирования).
Показ Модификаторов Растяжения тоже активирован (показ Модификаторов Растяжения также активируется в панели Слоев Конструирования). По умолчанию в качестве Модификаторов Растяжения используются размеры Номинальной Высоты/Ширины.
Теперь следует создать для определенных ребер Модификатор Смещения под названием Ширина Основания.
2.В панели Модификаторов нажмите кнопку Новый Модификатор.
3.В диалоге Нового Модификатора Профиля введите наименование: Ширина Основания.
Можно также воспользоваться выпадающим списком, если подходящий модификатор уже был создан для другого Профиля в данном проекте.
Вновь созданный модификатор появится в списке Модификаторов. Рядом с его наименованием будет отображаться желтый предупреждающий символ, так как новый модификатор пока не связан ни с одним ребром.
4.В Редакторе Профилей должен действовать режим ввода размеров (чтобы активировать этот режим вручную, нажмите в панели Модификаторов кнопку Добавления Размера Смещения).
Существует несколько способов привязки Размера:
•Связывание Ребра с Вершиной
•Связывание двух Ребер с Двумя Вершинами (привязка по Автоматическим Конечным Вершиинам)
•Связывание Вершин (с Соседним Ребром)
В процессе привязки ребра, которые можно смещать, отображаются черным цветом, а если на них навести курсор, то они выделяются синим цветом.
Связывание Ребра со Статичной Вершиной
1.Щелкните на том ребре, которое должно смещаться,
2.затем переместите курсор. В результате будет появится размерная линия с наименованием модификатора.
3.Щелкните в вершине Штриховки (это точка привязки), затем переместите появившуюся размерную линию и сделайте еще один щелчок мышью.
Полученный результат: выбранное ребро будет привязано к указанной вершине и его можно будет смещать в заданном направлении.
В конце размера отображается окружность, указывающая на то, что размер привязан к вершине (не к статичной точке).

Модификатор: Смещение одного Ребра, привязанного к Вершине Штриховки
Привязка ассоциирована с вершиной Штриховки. Это означает, что изменения геометрии Штриховки профиля будут приводить к изменениям точки привязки (и модификатора).
Связывание Ребра со Статичной Привязкой
Вы также можете сделать щелчок в любом месте окна Редактора Профилей для создания статичной точки привязки (на приведенной ниже иллюстрации щелчок был сделан в точке Начала Профиля).
Переместите размерную линию в подходящее место и щелчком мыши завершите ее создание.
В конце размера отображается квадрат, указывающий на то, что размер привязан к статичной точке (не к вершине).
Связывание Двух Ребер с Двумя Вершинами
Щелкните на том ребре, которое должно смещаться. Затем щелкните на втором ребре. В процессе перемещения появится размерная линия, автоматически обнаруживающая ближайшие доступные для привязки конечные вершины.
Переместите размерную линию в подходящее место и щелчком мыши завершите ее создание.
Полученный результат: Создан параметр смещения для двух ребер. Редактирование этого параметра будет приводить к смещения обоих ребер.

Модификатор Смещает Противоположные Ребра
Смещаемые ребра могут быть не параллельны друг другу.
Связывание Вершин с Соседним Ребром
Этот способ позволяет создать Модификатор, размерная линия которого может располагаться не перпендикулярно смещаемому ребру.
Щелкните на двух Вершинах для создания Размерной Линии.
Затем щелкните на том ребре, которое должно смещаться. Это ребро можно располагаться не перпендикулярно Размерной Линии, но оно должно включать одну из ранее указанных вершин.

Полученный результат: Ребро смещается перпендикулярно, но смещение измеряется в заданном вами направлении.