Az alábbi szakasz témái:
Méretezési horgonypont újbóli hozzárendelése
Élek hozzáadása egyetlen eltoló méretezéshez, ill. azok törlése
Méretezések hozzáadása egyetlen eltoló módosítóhoz
Élek vagy teljes méretezés törlése
Új eltoló módosító létrehozása - példa
Eltoló módosítók: tippek és tanácsok
Méretezési horgonypont újbóli hozzárendelése
1.Aktiválja a módosítót a Profilszerkesztőben (kattintson az eltoló méretmódosítóra a Profilszerkesztőben, vagy jelölje ki a Profilkezelő módosítók listájában)
2.Tekintse meg a visszajelzést, amelyen látható az él/csomópont horgonypont.
3.Kattintson a méretezés végére, amelyet újra kíván definiálni.
4.Lépjen egy másik ponthoz vagy élhez, és kattintson rá a méretezési horgonypont újbóli hozzárendeléséhez.
Élek hozzáadása egyetlen eltoló méretezéshez, ill. azok törlése
Több él is hozzárendelhető egyetlen mérethez. Minden él egyidejűleg, együtt mozog.
A példában a meglévő módosító neve „Felső”.
1.A fogó megtekintéséhez álljon a kurzorral a méretre vagy a Felső módosító egyik hozzárendelt élére a Profilszerkesztőben.
2.Kattintson a megjelenő fogóra: Él hozzáadása/törlése.
3.A kurzor mozgatásakor az alkalmas (eredetileg fekete színű) élek kék kiemeléssel jelennek meg. Válasszon élt kattintással.
4.A második kattintással határozható meg az iránya.
5.Ezzel hozzáadta a második élt a meglévő méretezéshez.
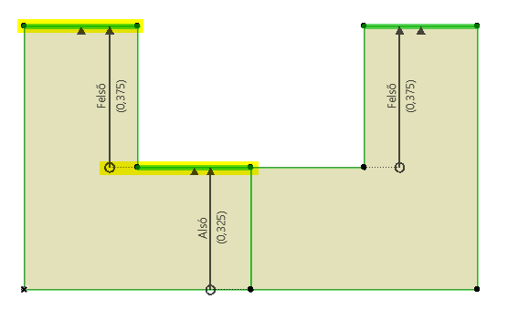
Méretezések hozzáadása egyetlen eltoló módosítóhoz
Ugyanahhoz az eltoló módosítóhoz több méretezés is hozzáadható. Minden további méretezés ugyanazzal a hosszal rendelkezik majd. Ezáltal ugyanazon módosító különböző élei dedikált horgonypontokkal rendelkezhetnek - arra az esetre, ha ezeket a horgonypontokat más módosítok elmozdítják.
1.Válassza ki a meglévő módosítót (Felső) a Profilkezelőben.
2.Kattintson a Méret hozzáadása ikonra.
3.A kurzor mozgatásakor az alkalmas élek és horgonypontok kék kiemeléssel jelennek meg. Válasszon élt kattintással, majd rögzítse a méretet a szokásos módon. A méret hossza megegyezik a módosítónál megadott, jelenlegi értékkel (amely az első mérettől származik).

4.A létrejövő egyszerű módosító két, egymástól függetlenül rögzített élt vezérel.
A példában a bal oldali „Felső” eltoló méretezés egy olyan élhez van rögzítve, amely maga is módosító (Alap). Ennek a jobb oldali „Felső” méretezésnek saját horgonypontja van.
A horgonypont áthelyezésekor a hozzá rögzített méretezés is elmozdul. Ilyen esetben, ha az alapot eltoljuk, a bal oldali (Alaphoz rögzített) Felső méret is elmozdul.

A jobb oldali Felső él azonban a helyén marad, hiszen a horgonypontját nem helyeztük át.
Élek vagy teljes méretezés törlése
1.Aktiválja a szerkeszteni kívánt módosítót a Profilkezelőben, vagy kattintson egy szürke Eltoló méretezésre annak bekapcsolásához és kiválasztásához
2.Álljon a kurzorral az élre vagy a méretre a Profilszerkesztőben.
3.Kattintson a megjelenő fogóra: Él hozzáadása/törlése.
4.Álljon a kurzorral az élre, hogy az piros színre váltson, majd kattintson a törléshez.
Az él törlődött.
Ha az utolsó élre vagy méretre áll, a program a teljes méretet vagy élt kiemeli piros színnel. Ha egy módosító minden méretezését törli, a módosítónál figyelmeztetés jelenik meg a Profilkezelőben.
Szükség esetén kattintson az Eltoló méret hozzáadása lehetőségre, amellyel új méret és hozzárendelt él hozható létre ehhez a módosítóhoz.
1.Válassza ki a törölni kívánt módosítót a Profilkezelőben.
2.Kattintson a Törlés gombra.
A módosítóhoz tartozó minden eltoló méretezés és hozzárendelt él törlődik.
Kattintson a kívánt módosító nevére a listában a helyben történő szerkesztéshez.