Chytré měření
Přesné měření ve 2D a 3D zobrazeních.
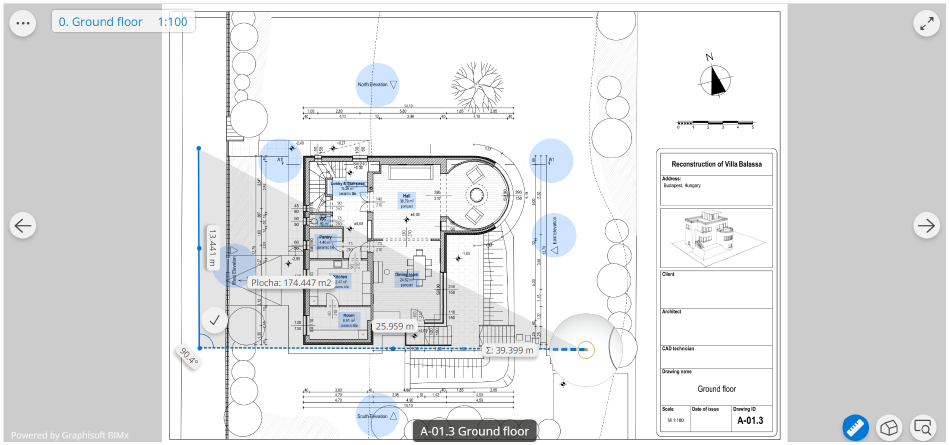
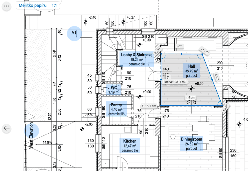
Měření ve 2D
Otevřete libovolný 2D výkres, který máte ve svém BIMx hyper-modelu.

Stisknutím ikony nástroje Měření vyvoláte kurzor s funkcí lupy
Stačí přejet na bod, od kterého chcete začít měřit, a kliknout na něj. Opakujte. Měření můžete ukončit klávesou Esc, kliknutím pravým tlačítkem myši nebo kliknutím na symbol fajfky.

Pokud pracujete se zařízením s dotykovou obrazovkou, použijte lupu. Přesuňte ukazatel na první bod, uvolněte jej, přetáhněte na druhý bod atd.
Můžete měřit třeba jen délku jedné stěny nebo měřit uzavřený prostor. Nástroj vám bude schopen zobrazit plochu, jakmile budou vloženy tři body. Dostupné hodnoty:
- Délka
- Úhel
- Plocha
Nástroj vám také vždy v zobrazí aktuální "celkovou délku" vypočtenou jako součet vzdáleností mezi zadanými body.

Měřítko můžete upravit kliknutím na štítek v levém horním rohu.

Klikněte na jeden z "aktivních bodů". Po kliknutí se zobrazí lupa, jejíž pomocí můžete aktualizovat tvar vybrané oblasti. Pokud chcete tento konkrétní bod odstranit, klikněte na něj a vedle se zobrazí "Odstranit". Pokud je vybraný bod na konci měřicí čáry, zobrazí se možnosti dvě "Odstranit" a "Přidat bod", abyste mohli měření rozšířit o další body.

Kliknutím na ikonu nástroje Měření se měření ukončí.
Měření ve 3D
Otevřete libovolný 3D model, který máte ve svém BIMx hyper-modelu. Nástroj Měření funguje téměř stejně jako ve 2D, jen s následujícími rozdíly:
- Nástroj vám vždy zobrazí aktuální "Celkovou délku" vypočtenou jako součet vzdáleností mezi zadanými body.
- Nástroj Měření ve 3D používá inteligentní asistenty, díky kterým získáte přesné výsledky. Kolmé vodítko vám pomůže změřit přímé svislé nebo vodorovné rozměry. Oranžový kruh přepíná mezi svislými a vodorovnými plochami, aby vám pomohl vybrat správný bod měření.


Změna jednotek
Chcete-li přepnout jednotky mezi metrickými a imperiálními, otevřete Nastavení a vyberte jednotku ze seznamu:

Přepínání měřítek na výkresech
- Zadejte první měřicí bod
- V jednom z horních rohů se objeví jméno kresby. Kliknutím na jméno kresby otevřete seznam měřítek a kreseb na výkresu.
- Vyberte odpovídající měřítko
