Maßstabsgerecht darstellen
Tatsächlicher Maßstab/Größe des 2D-Dokuments anzeigen
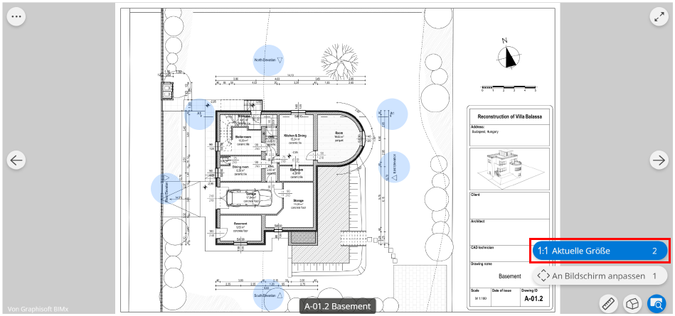
In einem 2D-Dokument:
- Klicken Sie auf das Schnellmenü Ansichten (in der rechten unteren Ecke des Bildschirms).
- Klicken Sie unter den angezeigten Befehlen auf das Symbol 1:1 (Maßstabsgerecht darstellen) oder drücken Sie die Taste 2, um das Dokument auf 100% zu vergrößern.
