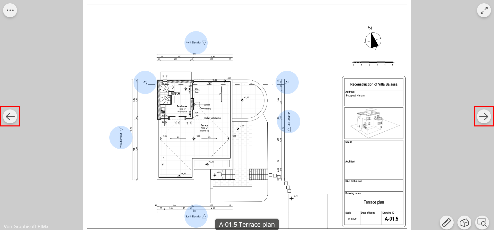
Navigieren in 2D
Unter Verwendung dieser Befehle können Sie im 2D-Dokument navigieren
Verschieben
Linke Maustaste + Ziehen
Verschieben mit einem Finger (auf dem Touchscreen)
Verschieben auf dem Touchpad: Klicken und halten Sie die rechte Taste, dann ziehen Sie
Zoom
Führen Sie eine der folgenden Aktionen aus:
- Scrollen mit dem Mausrad
- Doppelklick
- Auseinander-/Zusammenziehen (auf einem Touchscreen)
Vorheriges/nächstes 2D-Dokument öffnen
- Verwenden Sie die Pfeiltasten links/rechts oder die Pfeiltasten der Tastatur
- Wischen auf einem Touchscreen
Ansichten werden in der Reihenfolge geöffnet, in der sie im Index aufgelistet sind.
