Intelligente Bemaßung
Führen Sie präzise Messungen in 2D- und 3D-Ansichten durch
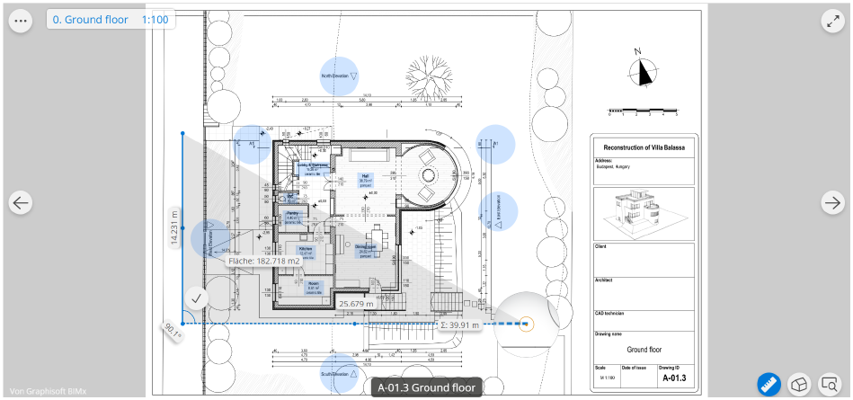
Verwenden des Bemaßungswerkzeugs in 2D
Öffnen Sie jedes 2D-Layout, das Sie in Ihrem BIMx Hyper-Modell haben.

Wenn Sie auf das Symbol für das Bemaßungswerkzeug drücken, wird der Lupenzeiger angezeigt
Gehen Sie einfach über den Punkt, an dem Sie die Messung beginnen möchten, und klicken Sie. Wiederholen Sie das. Sie können die Zeichenfolge fertig stellen, indem Sie auf Esc klicken, mit der rechten Maustaste klicken oder das Häkchen anklicken.

Verwenden Sie den Zeiger, wenn Sie mit einem Gerät mit Touchscreen arbeiten. Lassen Sie den Zeiger am ersten Punkt los und ziehen Sie ihn zum zweiten Punkt usw.
Vielleicht möchten Sie nur die Länge einer Wand oder einen geschlossenen Bereich messen. Das Werkzeug ist in der Lage, Ihnen einen Bereich zu geben, sobald drei Punkte platziert sind. Vorhandene Messungen:
- Länge
- Winkel (W)
- Fläche
Außerdem zeigt das Werkzeug immer die "Komplettlänge" der ausgewählten Punkte in Echtzeit an, indem es den Abstand zwischen den einzelnen Punkten addiert.

Sie können den Maßstab anpassen, indem Sie auf das Etikett in der oberen linken Ecke klicken.

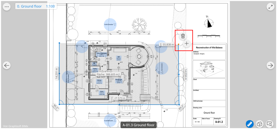
Klicken Sie auf einen der "Fangpunkte". Sobald Sie darauf klicken, wird der Zeiger der Lupe angezeigt und Sie können die Form des ausgewählten Bereichs aktualisieren. Wenn Sie diesen bestimmten Punkt löschen möchten, klicken Sie darauf und „Löschen" wird neben dem Punkt angezeigt. Befindet sich der Punkt, auf den Sie tippen, an einem Ende der Messlinie, erhalten Sie zwei Optionen: "Löschen" und "Punkt hinzufügen", so dass Sie die Messung um einen neuen Punkt erweitern können.

Durch Klicken auf das Symbol für Bemaßungswerkezug wird die Messung deaktiviert.
Verwendung des Bemaßungswerkzeugs in 3D
Öffnen Sie jedes 3D-Modell, das Sie in Ihrem BIMx Hyper-Modell haben. Das Werkzeug Messen funktioniert fast genauso wie in 2D, allerdings mit den folgenden Unterschieden:
- Das Werkzeug zeigt Ihnen in Echtzeit die "Komplettlänge" der von Ihnen ausgewählten Punkte an, indem es den Abstand zwischen den einzelnen Punkten addiert.
- Das Bemaßungswerkzeug in 3D bietet Ihnen intelligente Hilfslinien, mit denen Sie präzise Messungen vornehmen können. Die senkrechten Hilfslinien helfen Ihnen, gerade vertikale oder horizontale Messungen durchzuführen. Der orangefarbene Kreis wechselt zwischen vertikalen und horizontalen Flächen, sodass Sie den richtigen Messpunkt leichter wählen können.


Ändern der Einheiten
Wenn Sie die Einheiten zwischen Metrisch und Imperial umschalten möchten, öffnen Sie die Einstellungen und wählen Sie eine Einheit aus der Liste:

Umschalten zwischen Maßstäben auf Layouts
- Platzieren Sie den ersten Messpunkt
- Der Name der Zeichnung erscheint in einer der oberen Ecken. Klicken Sie auf den Zeichnungsnamen, um die Liste der Skalierungen & Zeichnungen im Layout anzuzeigen.
- Wählen Sie den geeigneten Maßstab
