Πραγματικό μέγεθος
Εμφάνιση πραγματικής κλίμακας/μεγέθους 2D εγγράφου
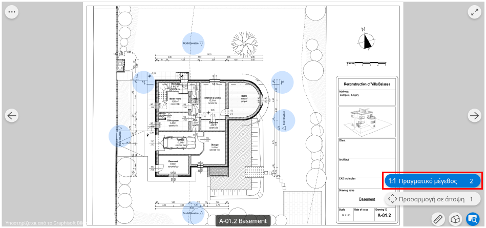
Σε ένα 2D έγγραφο:
- Κάντε κλικ στο ταχυ-μενού Απόψεις (στην κάτω-δεξιά γωνία της οθόνης).
- Από τις εντολές που εμφανίζονται, κάντε κλικ στο εικονίδιο 1:1 (Πραγματικό μέγεθος) ή πατήστε το πλήκτρο 2 για zoom μίας 2D άποψης σε κλίμακα 100%.
