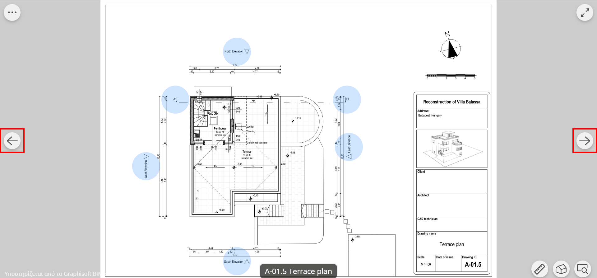
Πλοήγηση σε 2D
Χρησιμοποιήστε αυτές τις εντολές για να πλοηγηθείτε στο 2D έγγραφο
Μετατόπιση Χαρτιού
Αριστερό πλήκτρο του ποντικιού + Σύρσιμο
Μετατόπιση με ένα δάχτυλο (σε οθόνη αφής)
Μετατόπιση σε επιφάνεια αφής: κάντε κλικ και κρατήστε πατημένο το δεξί κουμπί + σύρσιμο
Zoom
Κάντε οποιαδήποτε από τις παρακάτω ενέργειες:
- Κάντε κύλιση με το ροδάκι του ποντικιού
- Κάντε διπλό-κλικ
- Σύγκλιση (σε οθόνη αφής)
Άνοιγμα επόμενου/προηγούμενου 2D εγγράφου
- Χρησιμοποιήστε τα κουμπιά αριστερό/δεξί βέλος, ή τα βέλη του πληκτρολογίου
- Σάρωση σε μία οθόνη αφής
Οι Απόψεις εμφανίζονται με τη σειρά που παρατίθενται στο Ευρετήριο.
