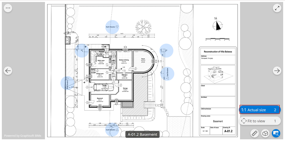
Actual size
Show actual scale/size of 2D document
In a 2D document:
- Click the Views quick-menu (in the screen’s bottom right corner).
- From the appearing commands, click the 1:1 (Actual size) icon or press the 2 key to zoom a 2D document to 100% scale.
