Show in 3D
Show 3D model view of 2D layout
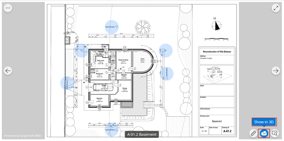
From 2D document:
Click the Show in 3D icon at the bottom right corner.
This opens the 3D model with a single click.

Note:
BIMx automatically opens the most relevant views. If a Layout contains multiple drawings, zoom to the desired one to display it in the corresponding 3D view.