Smart Measure
Tee tarkkoja mittauksia 2D- ja 3D-näkymissä
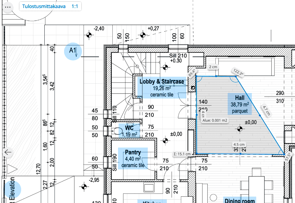
Mittaustyökalun käyttäminen 2D:ssä
Avaa mikä tahansa BIMx-hypermallissasi oleva 2D-asettelu.

Mittaustyökalun kuvaketta painamalla saat esiin suurennuslasi-osoittimen.
Siirry sen pisteen päälle, josta haluat aloittaa mittauksen, ja napsauta sitä. Toista. Voit lopettaa merkkijonon painamalla Esc-näppäintä, napsauttamalla hiiren oikealla painikkeella tai napsauttamalla valintamerkkiä.

Käytä osoitinta, jos työskentelet laitteella, jossa on kosketusnäyttö. Kun olet ensimmäisessä pisteessä, vapauta osoitin ja vedä se sitten toiseen pisteeseen ja niin edelleen.
Voit haluta mitata vain yhden seinän pituuden tai mitata suljetun alueen. Työkalu pystyy antamaan sinulle alueen heti, kun kolme pistettä on asetettu. Annetut mitat:
- Pituus
- Kulma
- Pinta-ala
Työkalu antaa myös aina reaaliaikaisen "kokonaispituuden" valitsemistasi pisteistä laksemalla yhteen pisteiden välisen etäisyyden toisiinsa.

Voit säätää mittakaavaa napsauttamalla vasemmassa yläkulmassa olevaa merkintää.

Napsauta yhtä "napsautuspisteistä". Kun napsautat sitä, suurennuslasin osoitin tulee näkyviin ja voit päivittää valitun alueen muodon. Jos haluat poistaa tietyn pisteen, napsauta sitä, jolloin pisteen vieressä näkyy "Poista". Jos napauttamasi piste on mittauslinjan päässä, saat kaksi vaihtoehtoa: "Poista" ja "Lisää piste", jotta voit jatkaa mittausta uudella pisteellä.

Mittaustyökalun kuvaketta napsauttamalla mittaus poistetaan käytöstä.
Mittaustyökalun käyttäminen 3D:ssä
Avaa mikä tahansa 3D-malli, joka on BIMx-hypermallissasi. Mittaustyökalu toimii lähes samoin kuin 2D-työkalussa, mutta seuraavin eroin:
- Työkalu antaa sinulle aina reaaliaikaisen "kokonaispituuden" valitsemistasi pisteistä lisäämällä pisteiden välisen etäisyyden toisiinsa.
- 3D:n mittaustyökalulla saat älykkäät oppaat, joiden avulla voit tehdä tarkkoja mittauksia. Kohtisuorat suuntaviivat auttavat sinua saamaan suorat pysty- tai vaakasuorat mittaukset. Oranssi ympyrä vaihtaa pystysuoran ja vaakasuoran pinnan välillä, jotta voit valita oikean mittauspisteen.


Yksiköiden vaihtaminen
Jos haluat vaihtaa yksiköt metrijärjestelmän ja brittiläisen järjestelmän välillä, avaa Asetukset ja valitse yksikkö luettelosta:

Mittakaavojen välillä vaihtaminen pohjapiirroksissa
- Aseta ensimmäinen mittauspiste
- Piirustuksen nimi näkyy yhdessä yläkulmassa. Napsauta piirustuksen nimeä näyttääksesi luettelon asettelun mittakaavoista ja piirustuksista.
- Valitse sopiva mittakaava
