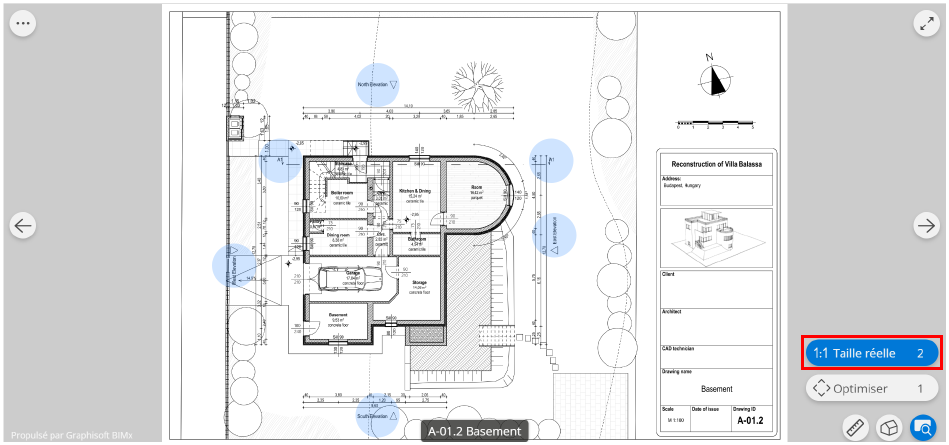
Taille réelle
Afficher l'échelle/la taille réelle du document 2D
Dans un document 2D :
- Cliquez sur le menu rapide Vues (dans l'angle inférieur droit de l'écran).
- Parmi les commandes qui apparaissent, cliquez sur l'icône 1:1 (Taille réelle) pour obtenir le zoom 100% d’un Document 2D.
