Intelligens Mérés
Pontos méréseket végezhet 2D és 3D nézetekben
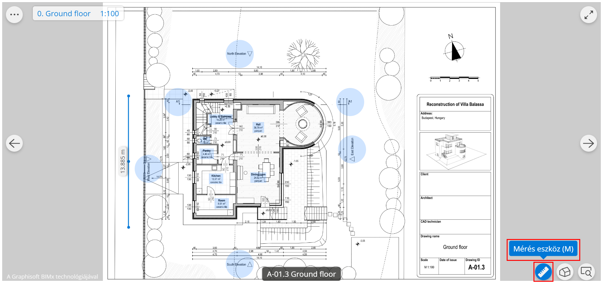
A Mérés eszköz használata 2D-ben
Nyissa meg a BIMx Hipermodellben lévő bármely 2D-s tervlapot.

A Mérés eszköz ikon megnyomásával megjelenik a nagyító mutatója
Egyszerűen menjen a pont fölé, ahonnan a mérést el szeretné kezdeni, és kattintson rá. Ismételje meg. Befejezheti a stringet az Esc gombra, a jobb gombbal való kattintással vagy a jelölőnégyzetre kattintva.

Használja a mutatót, ha érintőképernyős eszközzel dolgozik. Ha az első ponton van, engedje el a mutatót, majd húzza a második pontra, és így tovább.
Előfordulhat, hogy csak az egyik fal hosszát szeretné megmérni, vagy egy zárt területet mérni. Az eszköz képes lesz megadni egy területet, amint három pontot elhelyezünk. Adott mérések:
- Hossz
- Szög
- Terület
Emellett az eszköz mindig megadja a kiválasztott pontok valós idejű "Teljes hosszát", hozzáadva az egyes pontok egymás közötti távolságát.

A léptéket a bal felső sarokban lévő címkére kattintva állíthatja be.

Kattintson az egyik „illesztési pontra". Ha rákattint, megjelenik a nagyító mutatója, és frissítheti a kijelölt terület alakját. Ha törölni szeretné az adott pontot, kattintson rá, és a pont mellett megjelenik a "Törlés" felirat. Ha a megérintett pont a mérési vonal egyik végén van, akkor két lehetőség áll rendelkezésre: "Törlés" és "Pont hozzáadása", így egy új ponttal bővítheti a mérést.

A Mérés eszköz ikonjára kattintva a mérés kikapcsolható.
A Mérés eszköz használata 3D-ben
Nyissa meg a BIMx Hipermodellben lévő bármelyik 3D modellt. A Mérés eszköz szinte ugyanúgy működik, mint a 2D-ben, de a következő különbségekkel:
- Az eszköz mindig valós időben adja meg a kiválasztott pontok "Teljes hossz" értékét, hozzáadva az egyes pontok egymás közötti távolságát.
- A 3D-ben a mérőeszköz intelligens útmutatókat ad, amelyek lehetővé teszik a pontos mérések elvégzését. A merőleges irányvonalak segítenek a függőleges vagy vízszintes mérések elvégzésében. A narancssárga kör a függőleges és vízszintes felületek között vált, hogy segítsen a megfelelő mérési pont kiválasztásában.


Az egységek megváltoztatása
Ha át szeretné váltani a mértékegységeket a metrikus és a birodalmi mértékegységek között, nyissa meg a Beállításokat, és válasszon ki egy mértékegységet a listából:

Léptékek közötti váltás a Tervlapokon
- Helyezze le az első mérési pontot
- A rajz neve az egyik felső sarokban jelenik meg. Kattintson a rajz nevére a léptékek & rajzok listájának megjelenítéséhez a tervlapon.
- Válassza ki a megfelelő léptéket
