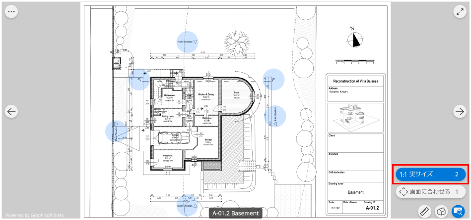
実サイズ 2Dドキュメントのスケール/サイズを表示します。 2Dドキュメントの場合: 画面の右下隅にある[ビュー]クイックメニューをクリックします。 表示されたコマンドから、[1:1](実サイズ )アイコンをクリックするか「2」キーを押すと、2Dドキュメントが100%スケールにズームされます。 親トピック: 画面表示のショートカット