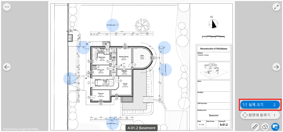
실제 크기 2D 문서의 실제 축척/크기 표시 2D 문서에서: 화면의 하단 우측 모서리에 있는 빠른 메뉴의 뷰를 클릭합니다. 나타나는 명령에서 1:1 (실제 크기) 아이콘을 클릭하거나 Ctrl+2 키를 눌러 2D 문서를 100% 스케일로 확대합니다. 상위 주제: 화면 뷰 단축키