Smart Measure
Wykonaj precyzyjne pomiary w widokach 2D i 3D.
Użycie narzędzia Measure w 2D
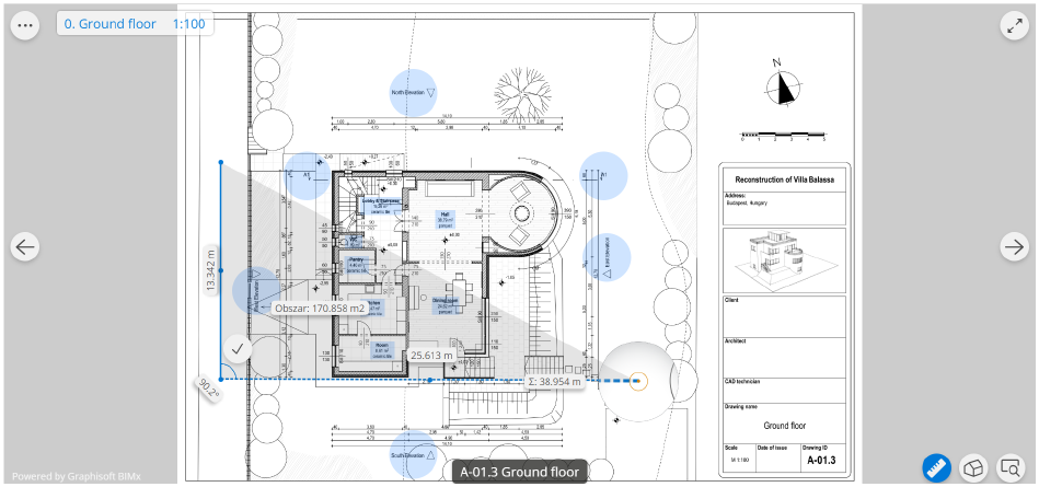
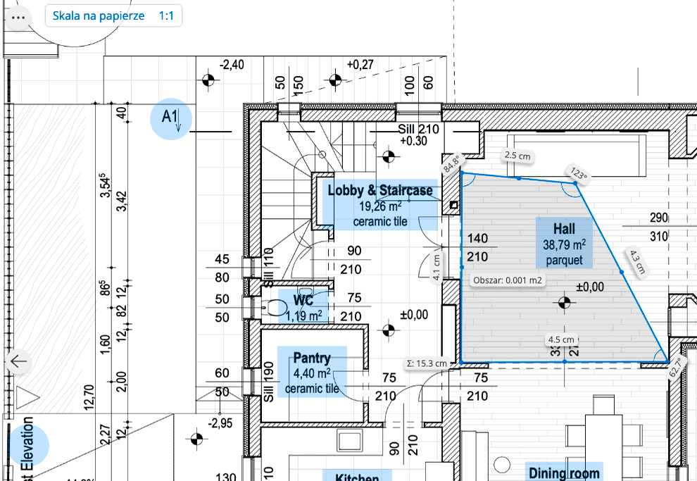
Otwórz dowolny układ 2D, który masz w swoim hipermodelu BIMx.

Naciśnięcie ikony narzędzia Measure spowoduje wyświetlenie wskaźnika lupy
Po prostu skocz do punktu, od którego chcesz rozpocząć pomiar i kliknij. Powtórz. Tekst można zakończyć, klikając przycisk Esc, klikając prawym przyciskiem myszy lub klikając znacznik wyboru.

Zastosuj wskaźnik jeśli pracujesz na urządzeniu z ekranem dotykowym. Po wybraniu pierwszego punktu zwolnij wskaźnik, a następnie przeciągnij go do drugiego punktu, itd.
Możesz chcieć zmierzyć tylko długość jednej ściany lub zmierzyć zamknięty obszar. Narzędzie będzie w stanie podać obszar po zaznaczeniu trzech punktów. Podane pomiary:
- Długość
- Kąt
- Powierzchniowe
Ponadto narzędzie zawsze podaje w czasie rzeczywistym "Długość całkowitą" wybranych punktów, dodając do siebie odległość między każdym z nich.

Skalowanie można regulować, klikając etykietę w lewym górnym rogu.

Kliknij jeden z „punktów zaczepienia". Po kliknięciu wyświetlony zostanie wskaźnik lupy i będzie można zaktualizować kształt wybranego obszaru. Jeśli chcesz usunąć konkretny punkt, kliknij na niego, a obok punktu pojawi się opcja „Usuń". Jeśli dotknięty punkt znajduje się na końcu linii pomiaru, dostępne są dwie opcje "Usuń" i "Dodaj punkt", dzięki czemu można rozszerzyć pomiar o nowy punkt.

Kliknięcie ikony narzędzia pomiaru spowoduje dezaktywację pomiaru.
Narzędzie Measure w 3D
Otwórz dowolny model 3D, który posiadasz w swoim BIMx Hyper-model. Narzędzie Measure działa prawie tak samo jak w 2D, ale z następującymi różnicami:
- Narzędzie zawsze podaje w czasie rzeczywistym "Długość całkowitą" wybranych punktów, dodając do siebie odległość pomiędzy każdym z nich.
- Narzędzie pomiarowe w 3D zapewnia inteligentne prowadnice umożliwiające wykonywanie precyzyjnych pomiarów. Wytyczne prostopadłe pomagają uzyskać proste pomiary pionowe lub poziome. Pomarańczowe kółko przełącza między powierzchniami pionowymi i poziomymi, aby pomóc w wyborze właściwego punktu pomiaru.


Zmiana jednostek
Jeśli chcesz przełączyć jednostki między metrycznymi i imperialnymi, otwórz Ustawienia i wybierz jednostkę z listy:

Przełączanie między Skalami na Arkuszach
- Umieść pierwszy punkt pomiarowy
- Nazwa rysunku pojawia się w jednym z górnych rogów. Kliknij nazwę rysunku, aby wyświetlić listę załączonych skal i grafik na układzie.
- Wybierz odpowiednią skalę
