Medição Inteligente
Efectue medições precisas em vistas 2D e 3D
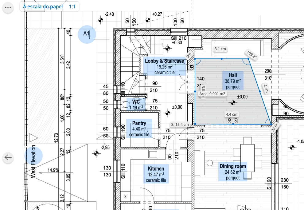
Utilizar a ferramenta Medir em 2D
Abra qualquer layout 2D que tenha no seu Hiper-modelo BIMx.

Ao clicar no ícone da ferramenta Medir, aparece o cursor de lupa
Basta passar sobre o ponto a partir do qual pretende iniciar a medida e clicar. Repetir. Pode terminar o texto clicando em Esc, clicando com o botão direito do rato ou clicando na marca de verificação.

Utilize o cursor se estiver a trabalhar com um dispositivo com ecrã táctil. Uma vez no primeiro ponto, solte o cursor e arraste-o para o segundo ponto, e assim por diante.
Poderá querer medir apenas o comprimento de uma parede ou medir uma área fechada. A ferramenta pode fornecer-lhe uma área logo que sejam colocados três pontos. Medidas fornecidas:
- Comprimento
- Ângulo
- Área
Além disso, a ferramenta dá-lhe sempre um "Comprimento total" em tempo real dos pontos que seleccionou, somando a distância entre cada ponto.

Pode ajustar a escala clicando na etiqueta no canto superior esquerdo.

Clique num dos "pontos de vínculo". Uma vez clicado, o cursor da lupa será apresentado e poderá actualizar a forma da área seleccionada. Se pretender apagar este ponto específico, clique nele e "Apagar" será apresentado ao lado do ponto. Se o ponto em que tocou estiver no fim da linha de medida, terá duas opções, "Apagar" e "Adicionar ponto", para que possa prolongar a medição com um novo ponto.

Se clicar no ícone da ferramenta Medir, a medição é desactivada.
Utilizar a ferramenta Medir em 3D
Abra qualquer modelo 3D que tenha no seu Hiper-modelo BIMx. A ferramenta de Medida funciona quase da mesma forma que em 2D, mas com as seguintes diferenças:
- A ferramenta dá-lhe sempre um "Comprimento total" em tempo real dos pontos que seleccionou, somando a distância entre cada ponto.
- A ferramenta de medição em 3D fornece-lhe guias inteligentes que lhe permitem efectuar medições precisas. As linhas de orientação perpendiculares ajudam-no a obter medições verticais ou horizontais rectas. O círculo cor de laranja alterna entre superfícies verticais e horizontais para o ajudar a escolher o ponto de medição correcto.


Alterar as unidades
Se pretender alternar as unidades entre o sistema métrico e o sistema imperial, abra Definições e seleccione uma unidade da lista:

Alternar entre escalas nos Layouts
- Coloque o primeiro ponto de medição
- O nome do desenho aparece num dos cantos superiores. Clique no nome do desenho para visualizar a lista de escalas e desenhos no layout.
- Seleccione a escala adequada
