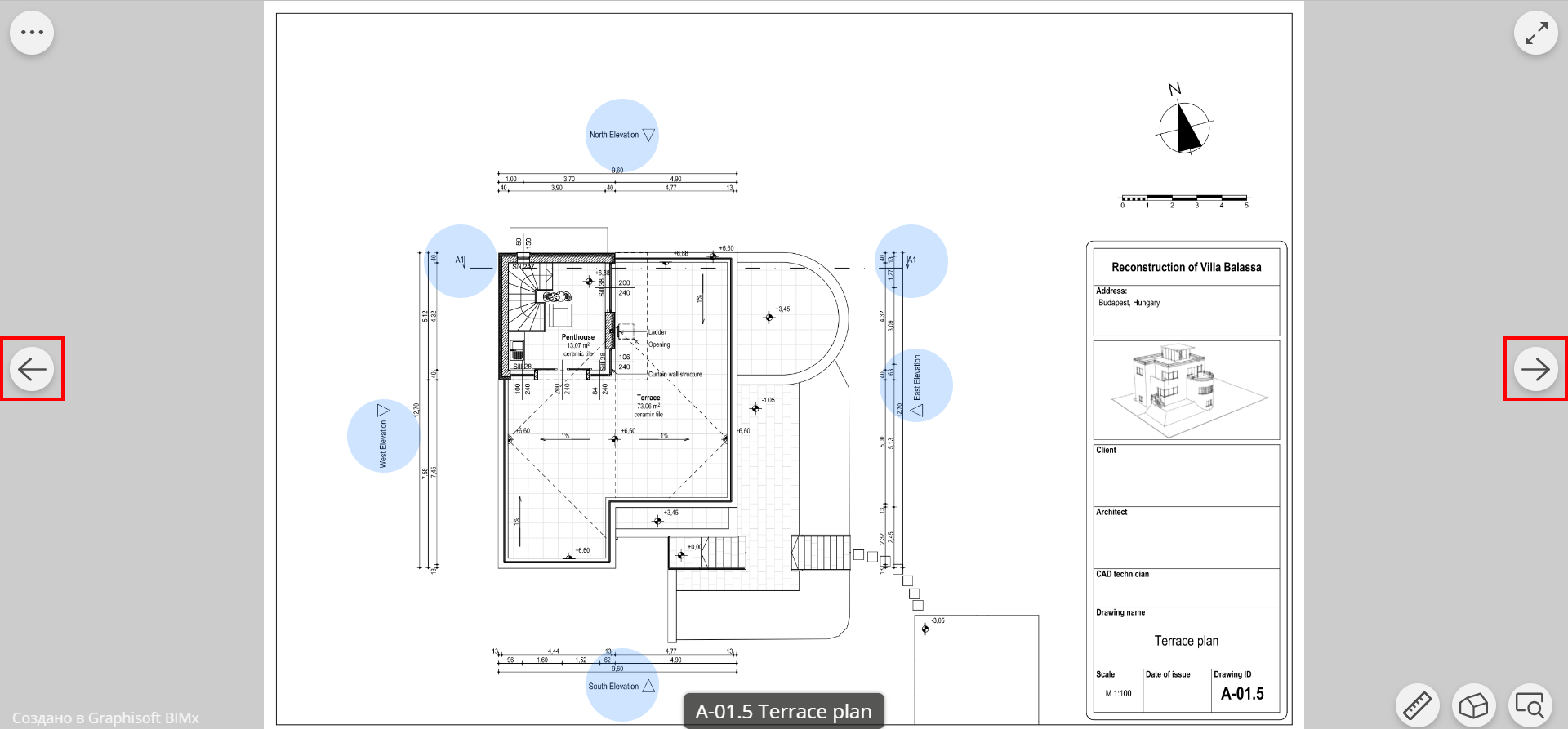
Навигация в 2D
Приведенные ниже команды предназначены для навигации по 2D-документам
Панорамирование
Перемещение мыши при нажатой левой кнопке
Панорамирование одним пальцем (на сенсорном экране)
Панорамирование на сенсорной панели: перемещайте палец, нажав и удерживая правую кнопку
Уровень Увеличения
Выполните одно из следующих действий:
- Воспользуйтесь колесом прокрутки мыши
- Сделайте двойной щелчок мышью
- Воспользуйтесь жестом щипка (на сенсорном экране)
Переход к предыдущему/следующему 2D-документу
- Воспользуйтесь кнопками со стрелками налево/направо на экране или клавишами со стрелками на клавиатуре
- Воспользуйтесь жестом смахивания (на сенсорном экране)
Виды открываются в том порядке, в котором они располагаются в Содержании.
