Интеллектуальные Измерения
Используйте функции точных измерений в 2D- и 3D-видах
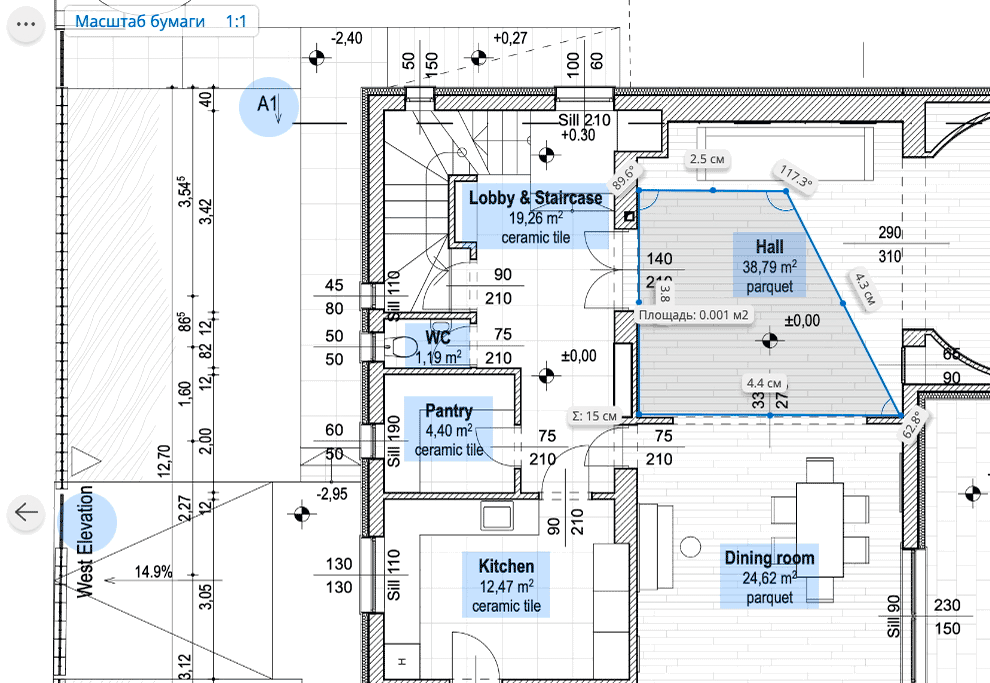
Использование инструмента Измерение в 2D
Откройте любой 2D-макет, присутствующий в Гипермодели BIMx.

Нажатие кнопки Измерение приведет к появлению лупы с указателем
Просто наведите курсор на ту точку, с которой вы хотите начать измерение, и щелкните мышью. Переместите указатель к следующей точке и снова щелкните мышью. Вы можете завершить процесс измерений, нажав клавишу Esc или щелкнув правой кнопкой мыши, или щелкнув на галочке.

Используйте указатель, если вы работаете на устройстве с сенсорным экраном. Находясь на первой точке, отпустите указатель, затем перетащите его на вторую точку и так далее.
Возможно, вы захотите измерить только длину одной стены или измерить площадь многоугольника. Инструмент начинает измерять площади после указания трех точек. Вы можете измерять:
- Длины
- Углы
- Площади
Кроме того, инструмент всегда отображает в режиме реального времени "Общую длину" траектории точек, складывая расстояния между заданными точками.

Вы можете настроить масштаб, нажав на метку в верхнем левом углу.

Нажмите на одну из "точек привязки". После нажатия появится лупа с указателем, и вы сможете изменить форму выделенной области. Если вы хотите удалить эту точку, нажмите на нее, и активируйте появившуюся рядом команду "Удалить". Если точка, на которую вы нажали, находится в конце линии измерений, то появятся команды "Удалить" и "Добавить точку", чтобы вы могли продолжить измерения с помощью новой точки.

Повторное нажатие на кнопку "Измерения" отключает функцию измерений.
Использование инструмента Измерение в 3D
Откройте любой 3D-вид, присутствующий в Гипермодели BIMx. Инструмент Измерения в 3D работает практически так же, как и в 2D, но со следующими отличиями:
- Инструмент всегда отображает в режиме реального времени "Общую длину" траектории точек, складывая расстояния между заданными точками.
- Использование инструмента Измерение в 3D сопровождается отображением интеллектуальных направляющих, позволяющих выполнять точные измерения. Перпендикулярные направляющие помогают выполнять прямые вертикальные или горизонтальные измерения. Оранжевый кружок переключается между вертикальной и горизонтальной поверхностями, помогая выбрать правильную точку измерения.


Изменение Единиц Измерения
Если вы хотите переключить Единицы Измерения между Метрическими и Имперскими, откройте Параметры и выберите единицы измерения из списка:

Переключение между Масштабами на Макетах
- Разместите первую точку измерения
- Название чертежа отображается в одном из верхних углов. Щелкните на названии чертежа, чтобы открыть список масштабов и чертежей, присутствующих на макете.
- Выберите нужный масштаб
