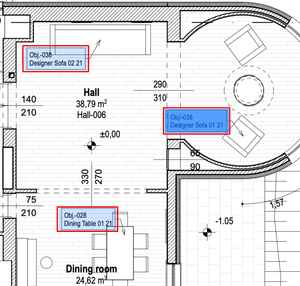
布局上的交互式元素标签
点击标签可从布局中访问 BIM 元素信息
可在 Archicad 27 或更高版本发布的 BIMx 超级模型中使用。
在 BIMx 的布局中,只需点击标签(以蓝色矩形突出显示),即可查看该元素的相关信息。(交互式矩形出现在有标签的 3D 模型元素上)。


单击图标浏览,打开 3D 模型并缩放至元素。
标记显示开/关
打开或关闭交互式标签:
- 从屏幕的左上角打开菜单
- 点击设置按钮。
- 切换 区域使其可见或关闭。

更多信息,参见。