智能测量
在二维和三维视图中进行精确测量
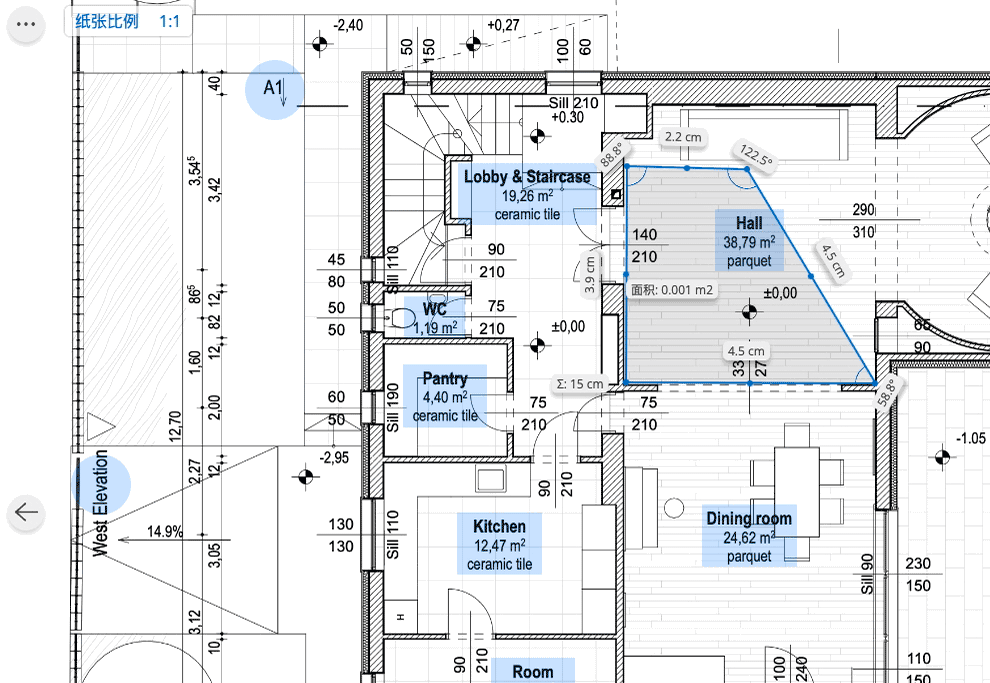
在2D中使用测量工具
打开你在BIMx 超级模型中的任何2D布局。

按下测量工具图标,会出现放大镜指针
只需在你想开始测量的点上,点击即可。重复。你可以通过点击Esc、右击或点击勾选标记来结束这一系列操作。

如果你使用的是带触摸屏的设备,请使用指针。一旦在第一个点上,释放指针,然后把它拖到第二个点上,以此类推。
你可能想只测量一面墙的长度,或测量一个封闭的区域。只要放置三个点,该工具就能给出这个范围的面积。给出的测量值:
- 长度
- 角度
- 面积
另外,该工具总是会将每个点之间的距离相加,给你一个实时 "总长度"。

你可以通过点击左上角的标签来调整比例。

点击其中一个 "捕捉点"。一旦点击即显示放大镜指针,然后就可以更改所选区域的形状。如果你想删除这个特定的点,点击它,"删除 "功能将显示在点的旁边。如果你点击的点在测量线的末端,那么你会得到两个选项 "删除 "和 "添加点",这样你就可以增加新的点来扩展测量范围。

点击 "测量 "工具图标将停用测量功能。
在3D中使用测量工具
打开你在BIMx 超级模型中的任何3D模型。测量工具的工作原理与 2D 几乎相同,但有以下不同之处:
- 该工具总是会将每个点之间的距离相加,给你一个实时 "总长度"。
- 3D中的测量工具为你提供了智能辅助,使你能够进行精确的测量。垂直准则可帮助您获得笔直的垂直或水平测量值。橙色圆圈可在垂直和水平表面之间翻转,帮助您选择正确的测量点。


改变单位
如果你想在公制和英制之间切换单位,打开设置,从列表中选择一个单位:

在布图上切换比例
一个布图可能包含几个图纸,在某些情况下,每个图纸可以有不同的比例。为了确保测量工具正确地将比例因素考虑在内,请做以下工作:
- 放置第一个测量点
- 图纸名称出现在其中一个顶角。点击图纸名称,显示布局上的比例& 图纸列表。
- 选择适当的比例
