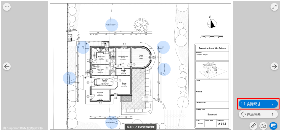
實際尺寸 顯示2D文檔的實際比例/大小 在一個二維文檔中: 點擊視圖快捷選單(螢幕右下角)。 從出現的命令中,點擊1:1(實際大小)圖標或按數字2鍵將2D文檔縮放到100%比例。 上層主題: 螢幕視圖快捷鍵