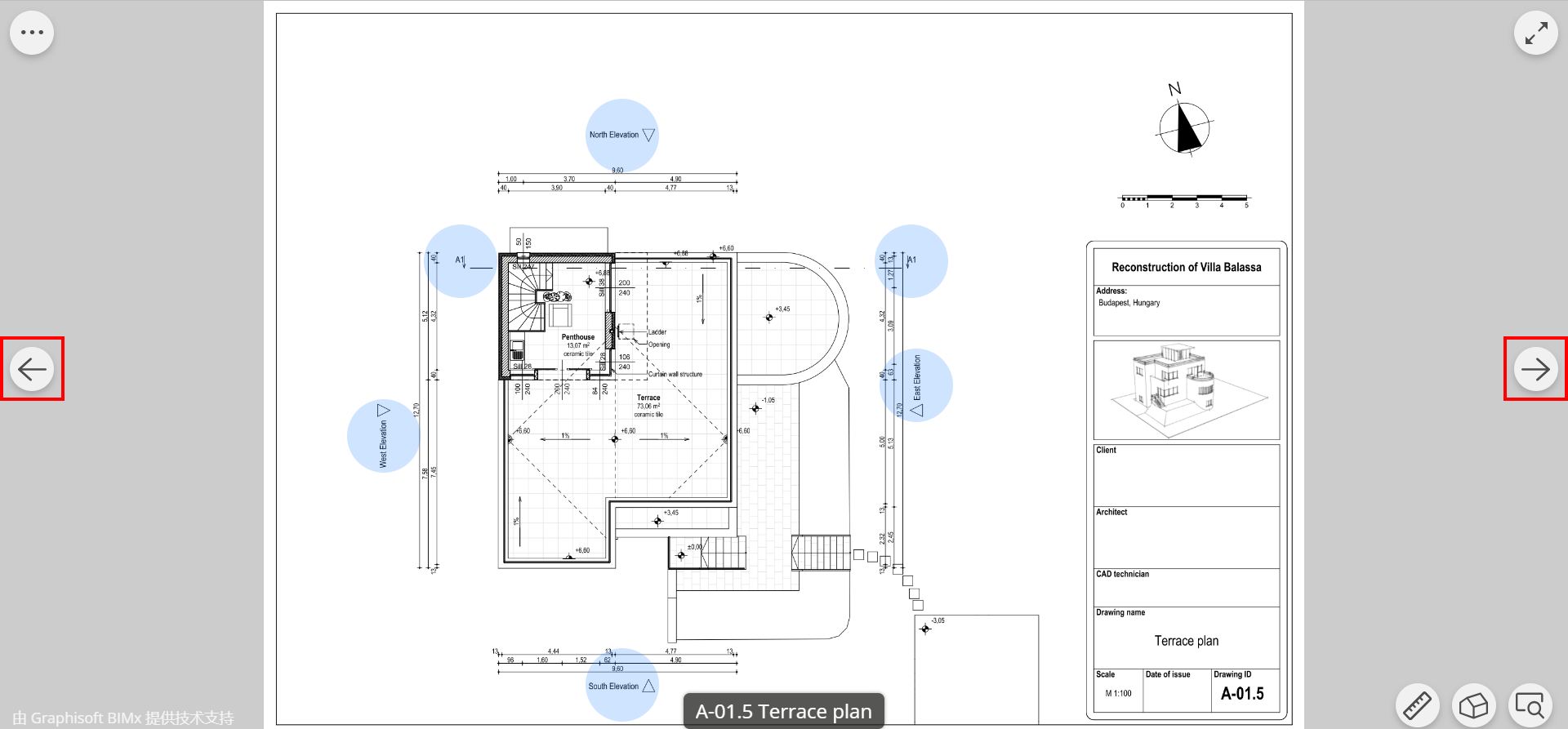
2D瀏覽

使用這些命令在2D文檔中瀏覽

平移

滑鼠左鍵+拖動

單指平移(在觸摸屏上)

在觸摸板上平移:點擊並按住右鍵,然後拖動

縮放

執行下列任意操作:

  • 滾動滑鼠滾輪
  • 雙擊
  • 雙指捏(在觸摸屏上)

開啟下一個/上一個 2D 文檔

  • 使用左/右方向鍵或鍵盤方向鍵
  • 滑動觸摸屏

視圖會按照索引中所列順序開啟。