智能測量
在二維和三維視圖中進行精確測量
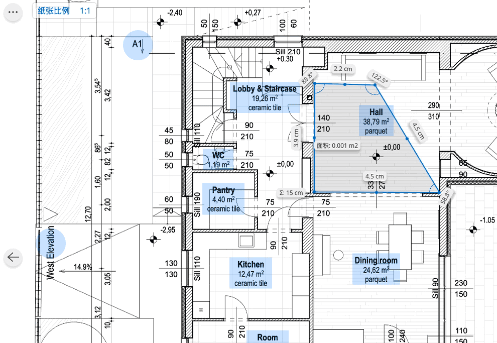
在2D中使用測量工具
開啟你在BIMx 超級模型中的任何2D佈局。

按下測量工具圖標,會出現放大鏡指針
只需在你想開始測量的點上,點擊即可。重複。你可以通過點擊Esc、右擊或點擊勾選標記來結束這一系列操作。

如果你使用的是帶觸摸屏的設備,請使用指針。一旦在第一個點上,釋放指針,然後把它拖到第二個點上,以此類推。
你可能想只測量一面牆的長度,或測量一個封閉的區域。只要放置三個點,該工具就能給出這個範圍的面積。給出的測量值:
- 長度
- 角度
- 面積
另外,該工具總是會將每個點之間的距離相加,給你一個實時 "總長度"。

你可以通過點擊左上角的標籤來調整比例。

點擊其中一個 "捕捉點"。一旦點擊即顯示放大鏡指針,然後就可以更改所選區域的形狀。如果你想刪除這個特定的點,點擊它,"刪除 "功能將顯示在點的旁邊。如果你點擊的點在測量線的末端,那麼你會得到兩個選項 "刪除 "和 "添加點",這樣你就可以增加新的點來擴展測量範圍。

點擊 "測量 "工具圖標將停用測量功能。
在3D中使用測量工具
開啟你在BIMx 超級模型中的任何3D模型。測量工具的工作原理與 2D 幾乎相同,但有以下不同之處:
- 該工具總是會將每個點之間的距離相加,給你一個實時 "總長度"。
- 3D中的測量工具為你提供了智能輔助,使你能夠進行精確的測量。垂直準則可幫助您獲得筆直的垂直或水平測量值。橙色圓圈可在垂直和水平表面之間翻轉,幫助您選擇正確的測量點。


改變單位
如果你想在公制和英制之間切換單位,開啟設定,從列表中選擇一個單位:

在佈圖上切換比例
一個佈圖可能包含幾個圖紙,在某些情況下,每個圖紙可以有不同的比例。為了確保測量工具正確地將比例因素考慮在內,請做以下工作:
- 放置第一個測量點
- 圖紙名稱出現在其中一個頂角。點擊圖紙名稱,顯示佈局上的比例& 圖紙列表。
- 選擇適當的比例
