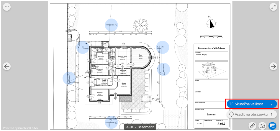
Skutečná velikost
Zobrazení skutečného měřítka/velikosti 2D dokumentu
Ve 2D dokumentu:
- Klikněte na rychlé menu zobrazení (v pravém spodním rohu obrazovky).
- Z dostupných příkazů vyberte ikonu 1:1 (Skutečná velikost), kterou nastavíte přiblížení 2D dokumentu na velikost 100%.
