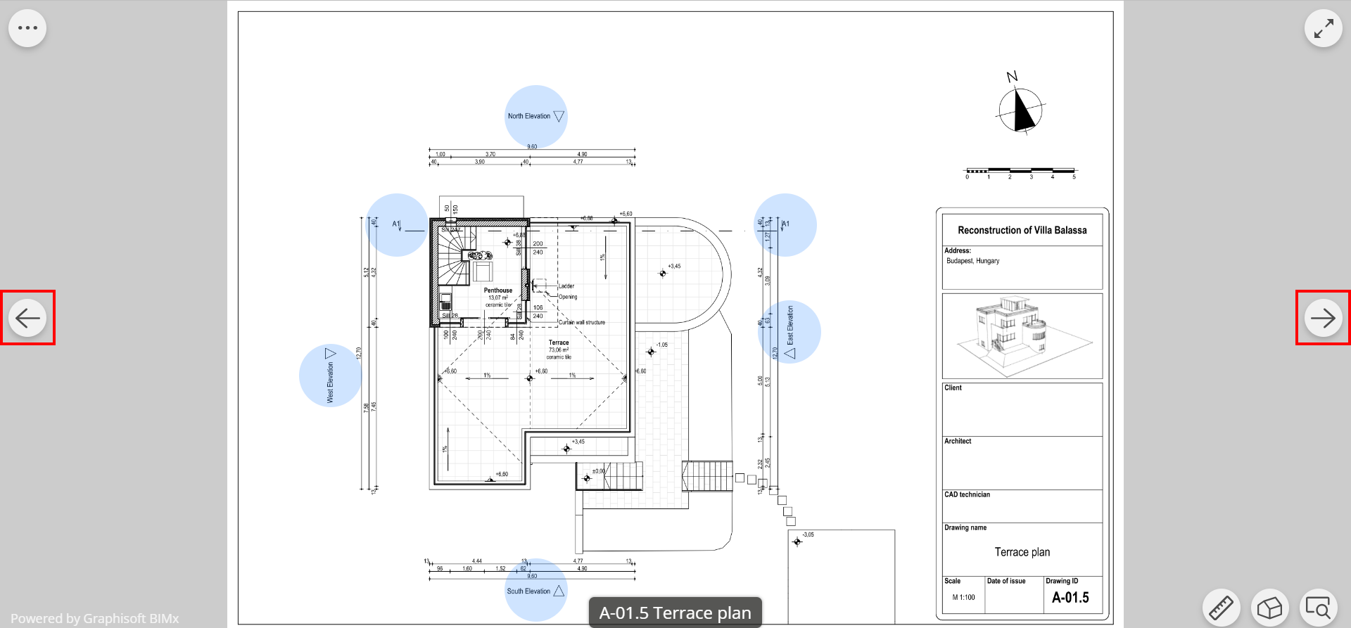
Prohlížení ve 2D
Pomocí těchto příkazů se můžete pohybovat ve 2D dokumentu
Posun
Levé tlačítko myši + pohyb
Posouvání jedním prstem (na dotykové obrazovce)
Posouvání na touchpadu: klikněte a podržte pravé tlačítko, pak posunujte
Přiblížení
Použijte jeden z následujících postupů:
- Rolování kolečkem myši
- Dvojklikem
- Sevření/roztažení (na dotykové obrazovce)
Následující/předchozí 2D dokument
- Použijte šipka doleva/doprava nebo šipky na klávesnici
- Posuňte na dotykovém displeji
Zobrazení jsou otevírána v pořadí, ve kterém jsou uložena v indexu.
