Έξυπνη Μέτρηση
Πραγματοποιήστε ακριβείς μετρήσεις σε 2D και 3D απόψεις
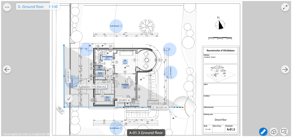
Χρήση του εργαλείου Μέτρηση σε 2D
Ανοίξτε οποιαδήποτε 2D πινακίδα έχετε στο BIMx Hyper-model.

Πατώντας το εικονίδιο του εργαλείου Μέτρηση θα εμφανιστεί ο δείκτης Μεγεθυντικός Φακός
Απλά πηγαίνετε πάνω από το σημείο από το οποίο θέλετε να ξεκινήσετε τη μέτρηση και κάντε κλικ. Επαναλάβετε. Μπορείτε να ολοκληρώσετε τη σειρά πατώντας Esc, κάνοντας δεξί κλικ ή κάνοντας κλικ στο σημάδι τσεκαρίσματος.

Χρησιμοποιήστε τον δείκτη αν εργάζεστε με συσκευή που διαθέτει οθόνη αφής. Μόλις βρεθείτε στο πρώτο σημείο, αφήστε τον δείκτη και σύρετέ τον στο δεύτερο σημείο κ.ο.κ.
Μπορεί να θέλετε να μετρήσετε μόνο το μήκος ενός τοίχου ή να μετρήσετε μία κλειστή περιοχή (εμβαδόν). Το εργαλείο θα είναι σε θέση να σας δώσει μία περιοχή μόλις τοποθετήσετε τρία σημεία. Δεδομένες μετρήσεις:
- Μήκος
- Γωνία
- Εμβαδόν
Επίσης, το εργαλείο θα σας δίνει πάντα σε πραγματικό χρόνο το "Συνολικό μήκος" των σημείων που επιλέξατε, προσθέτοντας τις αποστάσεις μεταξύ των σημείων.

Μπορείτε να ρυθμίσετε την κλίμακα κάνοντας κλικ στην ετικέτα στην επάνω αριστερή γωνία.

Κάντε κλικ σε ένα από τα "σημεία έλξης". Μόλις κάνετε κλικ, θα εμφανιστεί ο Μεγεθυντικός Φακός και θα μπορείτε να ενημερώσετε το σχήμα της επιλεγμένης περιοχής. Εάν θέλετε να διαγράψετε το συγκεκριμένο σημείο, κάντε κλικ σε αυτό και η ένδειξη "Διαγραφή" θα εμφανιστεί δίπλα στο σημείο. Εάν το σημείο που αγγίζετε βρίσκεται στο ένα άκρο της γραμμής μέτρησης, τότε θα εμφανιστούν δύο επιλογές "Διαγραφή" και "Προσθήκη σημείου", ώστε να μπορείτε να επεκτείνετε τη μέτρηση με ένα νέο σημείο.

Κάνοντας κλικ στο εργαλείο Μέτρηση (εικονίδιο) θα απενεργοποιήσετε τη μέτρηση.
Χρήση του εργαλείου Μέτρηση σε 3D
Ανοίξτε οποιοδήποτε διαθέσιμο 3D μοντέλο στο BIMx Hyper-model. Το εργαλείο Μέτρηση λειτουργεί σχεδόν όπως και στο 2D, αλλά με τις ακόλουθες διαφορές:
- Το εργαλείο θα σας δίνει πάντα σε πραγματικό χρόνο το "Συνολικό μήκος" των σημείων που επιλέξατε, προσθέτοντας τις αποστάσεις μεταξύ των σημείων.
- Το εργαλείο Μέτρηση σε 3D σας δίνει έξυπνους οδηγούς που σας επιτρέπουν να κάνετε ακριβείς μετρήσεις. Οι κάθετες γραμμές-οδηγοί σας βοηθούν να έχετε ευθείες κατακόρυφες ή οριζόντιες μετρήσεις. Ο πορτοκαλί κύκλος εναλλάσσεται μεταξύ κατακόρυφων και οριζόντιων επιφανειών για να σας βοηθήσει να επιλέξετε το σωστό σημείο μέτρησης.


Αλλαγή των Μονάδων
Αν θέλετε να αλλάξετε τις μονάδες μεταξύ Μετρικών και Αγγλοσαξονικών, ανοίξτε τις Ρυθμίσεις και επιλέξτε μία μονάδα από τη λίστα:

Εναλλαγή μεταξύ Κλιμάκων σε Πινακίδες
- Τοποθετήστε το πρώτο σημείο μέτρησης
- Το όνομα του σχεδίου εμφανίζεται σε μία από τις επάνω γωνίες. Κάντε κλικ στο όνομα του σχεδίου για να εμφανιστεί η λίστα με τις κλίμακες και τα σχέδια της πινακίδας.
- Επιλέξτε την κατάλληλη κλίμακα
