Smart Measure
Make precise measurements in 2D and 3D views
Using the Measure tool in 2D
Open any 2D layout you have in your BIMx Hyper-model.

Pressing the Measure tool icon will bring up the magnifier pointer
Simply go over the point you want to start the measure from and click. Repeat. You can finish the string by clicking Esc, right-clicking or clicking on the checkmark.

Use the pointer if you’re working with a device with touchscreen. Once on the first point, release the pointer then drag it to the second point, and so on.
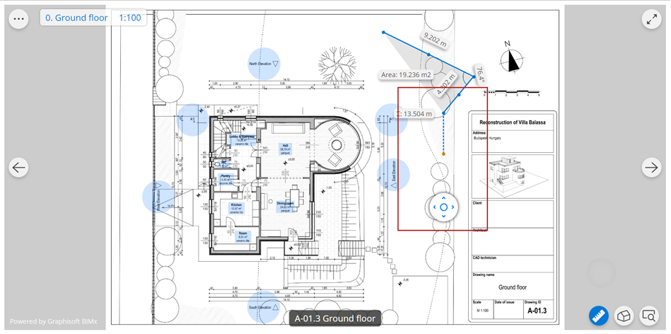
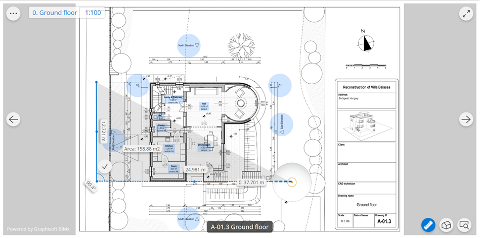
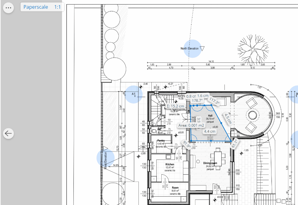
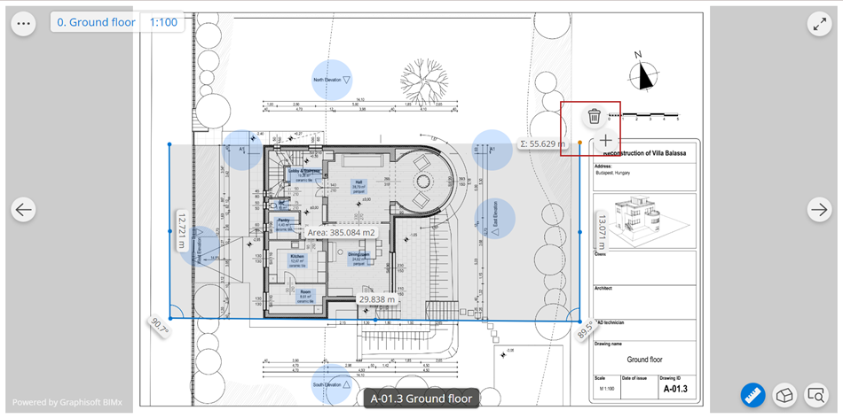
You may want to measure only the length of one wall, or measuring a closed area. The tool will be able to give you an area as soon as three points are placed. Given measurements:
- Length
- Angle
- Area
Also, the tool will always give you a real-time "Total length" of the points you selected, adding the distance between each points to each other.

You can adjust the scale by clicking the label in the upper left corner.

Click one of the "snap points". Once clicked, the magnifier pointer will be displayed and you will be able to update the shape of the selected area. If you want to delete this specific point, click on it and "Delete" will be displayed next to the point. If the point you tap is at an end of the measure line, then you will get two options "Delete" and "Add point", so you can extend the measurement with a new point.

Clicking the Measure tool icon will deactivate the measurement.
Using the Measure tool in 3D
Open any 3D model you have in your BIMx Hyper-model. The Measure tool works almost the same as in 2D, but with the following differences:
- The tool will always give you a real-time "Total length" of the points you selected, adding the distance between each points to each other.
- The measure tool in 3D gives you smart guides allowing you to make precise measurements. The perpendicular guidelines help you get straight vertical or horizontal measurements. The orange circle flips between vertical and horizontal surfaces to help you choose the right measurement point.


Changing the Units
If you wish to switch the Units between Metric and Imperial, open Settings and choose a unit from the list:

Switching between Scales on Layouts
- Place the first measurement point
- The drawing name appears in one of the top corners. Click the drawing name to display the list of scales & drawings on the layout.
- Select the appropriate scale
