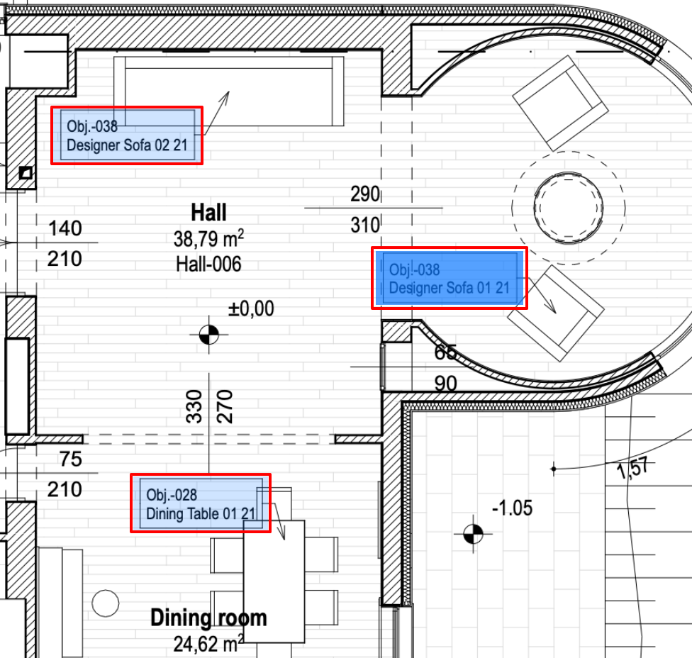
Etiquetas interactivas de elementos en los Planos
Haga clic en una Etiqueta para acceder a los datos del elemento BIM desde el Plano
Disponible en Hiper-Modelos BIMx guardados desde Archicad 27 o posterior.
En un Plano en BIMx, basta con hacer clic en una Etiqueta (resaltada con un rectángulo azul) para ver información sobre el elemento. (Aparecen rectángulos interactivos en los elementos del modelo 3D que tienen etiquetas)


Haga clic en el icono para abrir el modelo 3D y hacer zoom hasta el elemento.
Visualización de las etiquetas act/des
Para activar o desactivar las etiquetas interactivas:
- Abra el menú desde el lado superior izquierdo de la pantalla.
- Haga clic en el botón de Definiciones.
- Conmute Etiquetas para hacerlas visibles o desactivarlas.

Para mayor información, ver: