Medición Inteligente
Haga mediciones precisas en vistas 2D y 3D
Utilización de la herramienta de Medir en 2D
Abra cualquier Plano 2D que tenga en su Hiper-Modelo BIMx.

Si pulsa el icono de la herramienta de medición, aparecerá el puntero de la lupa
Sólo tiene que situarse sobre el punto desde el que quiere iniciar la medida y hacer clic. Repita el paso anterior. Puede terminar la cadena de cotas pulsando Esc, haciendo clic con el botón derecho o pulsando la marca de verificación.

Utilice el puntero si trabaja con un dispositivo con pantalla táctil. Una vez en el primer punto, suelte el puntero y arrástrelo hasta el segundo, y así sucesivamente.
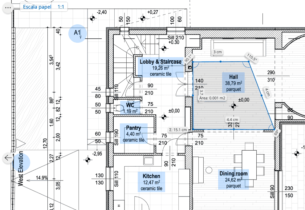
Es posible que desee medir sólo la longitud de un muro, o medir un área cerrada. La herramienta podrá calcular un área en cuanto se coloquen tres puntos. Medidas dadas:
- Longitud
- Ángulo
- Área
Además, la herramienta siempre le dará en tiempo real la "Longitud total" de los puntos que haya seleccionado, sumando la distancia entre cada uno de los puntos.

Puede ajustar la escala haciendo clic en la etiqueta de la esquina superior izquierda.

Haga clic en uno de los "puntos de coacción". Se mostrará el puntero de la lupa y podrá actualizar la forma del área seleccionada. Si desea eliminar este punto concreto, haga clic en él y aparecerá «Borrar" junto al punto. Si el punto que toca se encuentra en un extremo de la línea de medida, aparecerán dos opciones "Borrar" y "Añadir punto", para que pueda ampliar la medida con un nuevo punto.

Si hace clic en el icono de la herramienta de Medición, se desactivará la medición.
Uso de la Herramienta de Medición en 3D
Abra cualquier modelo 3D que tenga en su Hiper-Modelo BIMx. La herramienta de Medición funciona prácticamente igual que en 2D, pero con las siguientes diferencias:
- La herramienta siempre le dará en tiempo real la "Longitud total" de los puntos que haya seleccionado, sumando la distancia entre cada uno de los puntos.
- La herramienta de medición en 3D proporciona guías inteligentes que permiten realizar mediciones precisas. Las guías perpendiculares ayudan a obtener mediciones rectas verticales u horizontales. El círculo naranja alterna entre superficies verticales y horizontales para ayudarle a elegir el punto de medición correcto.


Cambio de Unidades
Si desea cambiar las Unidades entre Métrico o Imperial, abra los Ajustes y elija una unidad de la lista:

Cambiar de Escala en los Planos
- Inserte el primer punto de medición
- El nombre del dibujo aparece en una de las esquinas superiores. Haga clic en el nombre del dibujo para mostrar la lista de escalas & dibujos en el plano.
- Seleccione la escala adecuada
